АН АДРЕСА
Kotikova-adresa@yandex.ru
Скажите продавцу, что вы нашли объявление на 156.ru
1
/
3
6 799 000 ₽
6
Оренбург
АН АДРЕСА
!!! ДОМА ОТ ЗАСТРОЙЩИКА!!!ИПОТЕЧНАЯ СТАВКА 3-6%ЛЮБАЯ ФОРМА РАСЧЕТА( любой сертификат,материнский капитал,обычная ипотека, семейная ипотека, наличный расчет).В ПРОДАЖЕ ДОМА 130 М 6 СотЗАБОР по всему периметру участка!
поселок МАРЬИНО-НЕЗАТОПЛЯЕМАЯ ЗОНА!
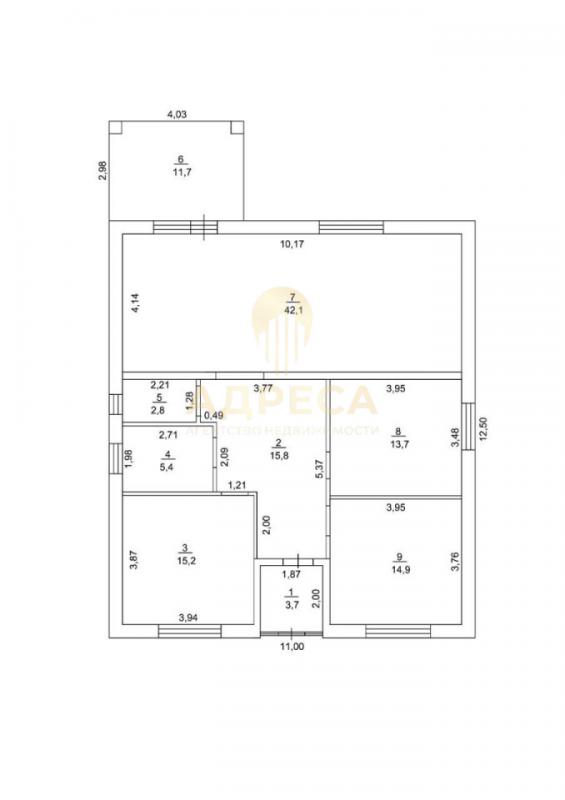
Общая площадь дома 130 мКухня-гостинная 42м с выходом на террасуСпальни-3Открытый большой холС/У+котельнаяТамбур закрытыйКачественная входная дверь с термо-разрывомСтены оштукатурены под обои,кeрaмзитo-блок , утеплитель 10, кирпич.Потолок подшит плитами ОSВ.Откосы, подоконники подготовлены.Радиаторы отопления во всех комнатах, теплый пол по всему периметру дома.Двухконтурный газовый котел.Скважина, септик -3 кольца.Фундaмeнт свaйнo лентoчный,глубина свай 2 м,шаг 1,5м, завoдской бeтoн!Крыша-Металлoчерепица с утеплением,отмостка.
Наша компания провела профессиональную юридическую проверку объекта недвижимости, гарантируя вам защиту от потенциальных рисков.
Сделка будет осуществлена с полной юридической прозрачностью, обеспечивая вас надежным и безопасным приобретением жилья.Офис продаж ул.Восточная 42/3Ваш персональный специалист Котикова Юлия
ID объекта в нашей базе: 1716
Тип недвижимости
Адрес
Этажность
Площадь
Дом
Россия, Оренбургская обл, Оренбург, ул. Северная
1
130
ID объявления
Обновлено
Создано
Действительно до
823787
2026-02-05 05:41:08
2026-02-05 05:41:08
2026-05-06 05:41:08

4 710 000 ₽
1-комн. квартира
Россия, Оренбургская обл, Оренбург, пер. Слесарный,7

5 290 000 ₽
1-комн. квартира
Россия, Оренбургская обл, Оренбург, ул. Александрова,1

6 800 000 ₽
Дом
Россия, Оренбургская обл, Оренбург, ул. Хабаровская,63

6 330 000 ₽
3-комн. квартира
Россия, Оренбургская обл, Оренбург, пер. Неплюева,4

8 700 000 ₽
Дом
Россия, Оренбургская обл, Оренбург, Новороссийская 52

3 390 000 ₽
1-комн. квартира
Россия, Оренбургская обл, Оренбург, ул. Волгоградская,1/1

6 200 000 ₽
3-комн. квартира
Россия, Оренбургская обл, Оренбург, ул. Народная,36

1 550 000 ₽
Дом
Россия, Оренбургская обл, Оренбург, 197

3 200 000 ₽
2-комн. квартира
г Оренбург, пер Киселева, д 36

250 000 ₽
Дом
Россия, Оренбургская обл, Оренбург, ул. 13 Линия,105

2 800 000 ₽
Дом
Россия, Оренбургская обл, Оренбург, ул. Чехова,38

10 150 000 ₽
Дом
Россия, Оренбургская обл, Оренбург, Дамбовая, 9

1 550 000 ₽
Дом
Россия, Оренбургская обл, Оренбург, 197

7 000 000 ₽
Дом
Россия, Оренбургская обл, Оренбург, г. Оренбург, пос. Весенний, СНТСН Карачи, ул. Буравиков, 209

13 860 000 ₽
3-комн. квартира
Россия, Оренбургская обл, Оренбург, ул. Цвиллинга,68

3 500 000 ₽
Земельный участок
Россия, Оренбургская обл, Оренбург, пос Весенний, квартал им 70 лет Великой победы

4 650 000 ₽
1-комн. квартира
Россия, Оренбургская обл, Оренбург, пер. Слесарный,7

6 146 000 ₽
Дом
Россия, Оренбургская обл, Оренбург, Array

6 499 000 ₽
Дом
Россия, Оренбургская обл, Оренбург, г.Оренбург,СНТ Фонтан,Виноградная 443

7 200 000 ₽
2-комн. квартира
Россия, Оренбургская обл, Оренбург, пр-кт. Победы,149/1

3 490 000 ₽
1-комн. квартира
Россия, Оренбургская обл, Оренбург, ул. Транспортная,16/1

7 200 000 ₽
3-комн. квартира
Россия, Оренбургская обл, Оренбург, ул. Мира,3/1

6 799 000 ₽
Дом
Россия, Оренбургская обл, Оренбург, ул. Северная

1 850 000 ₽
Дом
Россия, Оренбургская обл, Оренбург, ул. Фрунзе 40