АН АДРЕСА
strel.921-adresa56@yandex.ru
Скажите продавцу, что вы нашли объявление на 156.ru
1
/
3
7 200 000 ₽
6
Оренбург
АН АДРЕСА
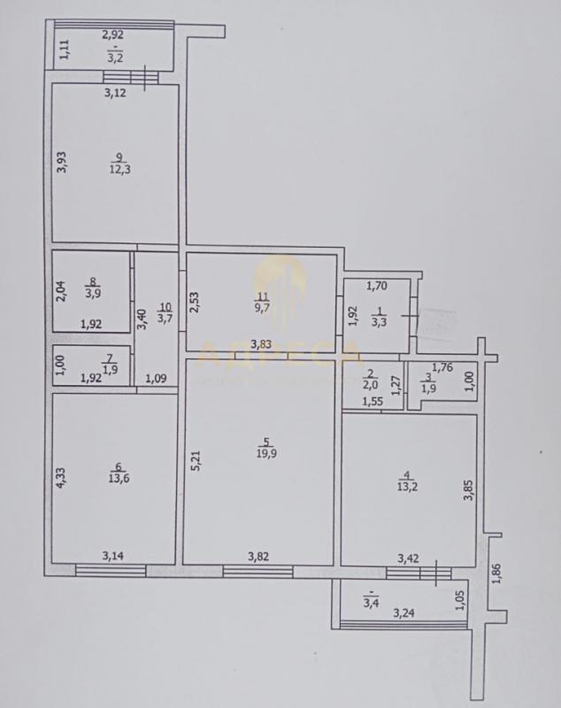
Продаётся просторная трёхкомнатная квартира на комфортном 9 этаже.Район с развитой инфраструктурой: магазины, рынок "Петровский", школа №8, №32, Пушкинский лицей, детский сад №4, №140. В пешей доступности культурный комплекс «Национальная деревня» и парк им. Ю.А. Гагарина.Идеальное предложение для семьи, которая ценит комфортное проживание.Ключевые параметры:· Общая площадь: 85,4 м².· Этаж: 9/16.· Комнаты: изолированные.Описание и преимущества:· Современный ремонт: Полы залиты и выровнены, стены идеально ровные, полностью заменена вся электрическая проводка.· Отделка: Ванная, санузел отделаны современным кафелем.· Комфорт и технологии: В ванной установлен «тёплый пол», в гостиной мощная сплит-система. Высокие потолки 2,9 метра.· Функциональность: Удобная кухня 14 м² с встроенной мебелью "Мария". Есть гардеробная комната со стиральной машинойИнфраструктура и двор:· Во дворе — зона для барбекю, современная детская и спортивная площадки, хоккейная коробка.· В шаговой доступности всё необходимое: аптека, почта, продуктовые магазины.· Круглосуточное видеонаблюдение (Уфанет) в подъездах и лифтах для вашей безопасности.Транспортная развязка:· Остановка общественного транспорта в 3х минутах ходьбы. Автобусы № 7, 20, 79Н, 53Н позволят добраться в любую точку города без проблем.· Рядом расположены улицы: Алтайская, Карагандинская, Пр. Гагарина, Лесозащитная.✅Если у Вас не продан объект недвижимости, но Вы хотите приобрести наш, мы готовы помочь Вам реализовать эту мечту! Наша компания всегда готова предложить Вам лучшие варианты решения, которые соответствуют Вашим потребностям!Звоните и записывайтесь на просмотр!!!
ID объекта в нашей базе: 1726
Тип недвижимости
Адрес
Этажность
Этаж
Площадь
3-комн. квартира
Россия, Оренбургская обл, Оренбург, ул. Мира,3/1
16
9
85.4
ID объявления
Обновлено
Создано
Действительно до
823791
2026-02-05 05:41:41
2026-02-05 05:41:41
2026-05-06 05:41:41

3 300 000 ₽
3-комн. квартира
Россия, Оренбургская обл, Оренбург, ул. Желябова,17

8 490 000 ₽
3-комн. квартира
Россия, Оренбургская обл, Оренбург, ул. Есимова,3
8 500 000 ₽
Земельный участок
Россия, Оренбургская обл, Оренбург, ул. Весенняя,3

7 600 000 ₽
Дом
Россия, Оренбургская обл, Оренбург, Оренбургская обл., г. Оренбург, СНТ Росинка, 26

6 146 000 ₽
Дом
Россия, Оренбургская обл, Оренбург, Array

1 800 000 ₽
1-комн. квартира
Россия, Оренбургская обл, Оренбург, ул. Карагандинская,52
2 600 000 ₽
1-комн. квартира
г Оренбург, пр-кт Дзержинского, д 13, кв 1

4 650 000 ₽
1-комн. квартира
Россия, Оренбургская обл, Оренбург, пер. Слесарный,7

2 249 000 ₽
1-комн. квартира
Россия, Оренбургская обл, Оренбург, ул. Конституции СССР,24/1 к 1

6 300 000 ₽
2-комн. квартира
Россия, Оренбургская обл, Оренбург, ул. Братьев Хусаиновых,8

4 700 000 ₽
1-комн. квартира
Россия, Оренбургская обл, Оренбург, пр-кт. Победы,149/3

5 300 000 ₽
2-комн. квартира
Россия, Оренбургская обл, Оренбург, ул. Планерная,4

3 500 000 ₽
Земельный участок
Россия, Оренбургская обл, Оренбург, пос Весенний, квартал им 70 лет Великой победы

1 500 000 ₽
Дом
Россия, Оренбургская обл, Оренбург, Оренбургская обл., г. Оренбург, г. Оренбург СНТ "Гидропресс-Госматрезервы-станция" 1-сиреневая 46

3 750 000 ₽
1-комн. квартира
Россия, Оренбургская обл, Оренбург, ул. Мира,3/1

4 800 000 ₽
2-комн. квартира
Россия, Оренбургская обл, Оренбург, ул. Чкалова,3/2

7 055 000 ₽
Дом
Россия, Оренбургская обл, Оренбург, 8

2 800 000 ₽
Дом
Россия, Оренбургская обл, Оренбург, ул. Чехова,38

800 000 ₽
Дача
Россия, Оренбургская обл, Оренбург, СНТ Энергоноситель, улица Майская 46

4 990 000 ₽
1-комн. квартира
Россия, Оренбургская обл, Оренбург, ул. Фронтовиков,8/2

250 000 ₽
Дом
Россия, Оренбургская обл, Оренбург, ул. 13 Линия,105

5 950 000 ₽
Дом
Россия, Оренбургская обл, Оренбург, 12

1 699 000 ₽
1-комн. квартира
Россия, Оренбургская обл, Оренбург, ул. 1 Мая,148

2 850 000 ₽
1-комн. квартира
Россия, Оренбургская обл, Оренбург, ул. Юркина,2