АН АДРЕСА
info.adresa56@yandex.ru
Скажите продавцу, что вы нашли объявление на 156.ru
1
/
3
5 950 000 ₽
16
Оренбург
АН АДРЕСА
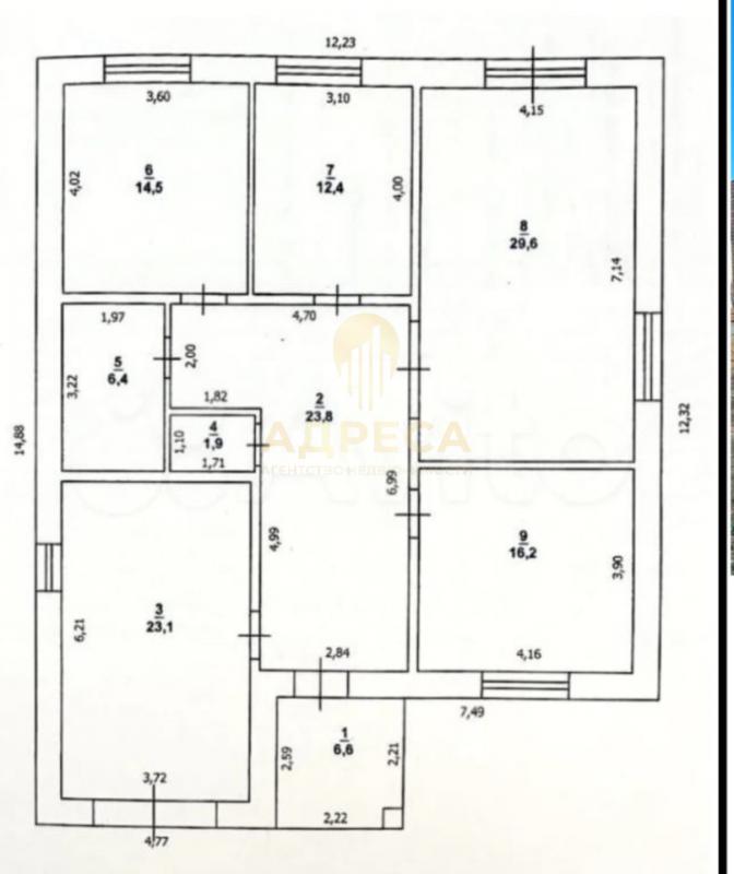
Дом расположен на территории которая не была затоплена! Новый дом! В современном посёлке! Дом качественной постройки! С пред чистовой отделкой!Так же есть Предложение домов до 140 кв. с гаражом, есть выбор по планировкам.Внутренняя отделка: - Теплый пол по всему дому. - Отштукатурены стены, полусухая стяжка.- Натяжные потолки, розетки, выключатели. - Окна -рехау.Общая площадь - 103 м2.Участок 4,5 соток.Фундамент: Фундамент-свайно-ростверговыйСтены: керамзитоблок (20)+ утеплитель (10)+ облицовочный кирпич.(1,5)Крыша: утепленная +металлочерепица. Коммуникации:Дом сдаётся с заведенными коммуникациями: газ, свет, центральное водоснабжение, автономная канализация.Планировка: Кухня-гостиная с выходом на террасу, 2 спальни, санузел, котельная, коридор, крыльцо, терраса.
О поселке:Приуралье – большой, развитый пригородный поселок со своей инфраструктурой. до города 20 мин на автобусе , 10 мин на машине. Земли ИЖС. Сельская прописка (низкие коммунальные платежи, дешёвый полис ОСАГО и т.д.).
Инфраструктура:Дороги отсыпаны, зимой чистятся, в дальнейшем будет асфальт. Есть остановка общественного транспорта, откуда на автобусе можно доехать до Оренбурга.В поселке есть свой новый детский сад, торговый центр, продуктовые магазины, детские площадки. Есть школьная развозка в новую школу п. Экодолье. В самом посёлке планируется постройка своей школы.Форма расчёта - наличный расчет.- продажа вашего жилья через наше агентство.- ипотека (окажем помощь в одобрении).- материнский капитал.- различные сертификаты, В ТОМ ЧИСЛЕ НА ПОКУПКУ/СТРОИТЕЛЬСТВО ЖИЛЬЯ ПОСТРАДАВШИМ ОТ ПАВОДКА!Так же есть предложение домов и таунхаусов и в других направлениях :в коттеджном поселке Марьино, п. Приуралье, Экодолье, п. Соловьевка, п.Покровка, с Нежинка, снт АвиаторНаш офис ул. Восточная 42/3
ID объекта в нашей базе: 1149
Тип недвижимости
Адрес
Этажность
Площадь
Дом
Россия, Оренбургская обл, Оренбург, 12
1
100
ID объявления
Обновлено
Создано
Действительно до
841648
2026-03-10 05:21:57
2026-03-10 05:21:57
2026-06-08 05:21:57

4 450 000 ₽
1-комн. квартира
Россия, Оренбургская обл, Оренбург, ул. Пролетарская,288/3

7 500 000 ₽
Дом
Россия, Оренбургская обл, Оренбург, ул. Ломоносова

8 999 999 ₽
Дом
Приуралье Александра Невского 36 Оренбург

3 200 000 ₽
2-комн. квартира
г Оренбург, пер Киселева, д 36

8 250 000 ₽
Дом
Россия, Оренбургская обл, Оренбург, СНТ Авиатор- 3, ул. Десантная 43

2 900 000 ₽
1-комн. квартира
Россия, Оренбургская обл, Оренбург, ул. Озеленителей,34

7 055 000 ₽
Дом
Россия, Оренбургская обл, Оренбург, 8

4 610 000 ₽
1-комн. квартира
Россия, Оренбургская обл, Оренбург, пер. Слесарный,7

2 630 000 ₽
1-комн. квартира
Россия, Оренбургская обл, Оренбург, Пригородный,пр-кт Звёздный 128 Д

3 490 000 ₽
1-комн. квартира
Россия, Оренбургская обл, Оренбург, ул. Транспортная,16/1

1 650 000 ₽
Дом
Россия, Оренбургская обл, Оренбург, ул. Береговая 6-я,9

12 000 000 ₽
3-комн. квартира
Россия, Оренбургская обл, Оренбург, ул. Цвиллинга,68

4 700 000 ₽
Дом
Россия, Оренбургская обл, Оренбург, СНТ Строитель, ул. Сиреневая

550 000 ₽
Земельный участок
Россия, Оренбургская обл, Оренбург, 123

6 550 000 ₽
Дом
Россия, Оренбургская обл, Оренбург, ул. 3-я Линия,

4 599 000 ₽
3-комн. квартира
Россия, Оренбургская обл, Оренбург, ул. Дружбы,3/4

1 100 000 ₽
2-комн. квартира
Россия, Оренбургская обл, Оренбург, ул. Геофизиков,3А

7 500 000 ₽
Дом
Россия, Оренбургская обл, Оренбург, Array

800 000 ₽
Дача
Россия, Оренбургская обл, Оренбург, СНТ Энергоноситель, улица Майская 46

10 150 000 ₽
Дом
Россия, Оренбургская обл, Оренбург, п. Весенний, ул. Агатовая, д. 10

5 300 000 ₽
2-комн. квартира
Россия, Оренбургская обл, Оренбург, ул. Планерная,4

8 490 000 ₽
3-комн. квартира
Россия, Оренбургская обл, Оренбург, ул. Есимова,3

6 700 000 ₽
Дом
Россия, Оренбургская обл, Оренбург, Оренбургская обл., г. Оренбург, СНТ Росинка, 26

5 350 000 ₽
2-комн. квартира
Россия, Оренбургская обл, Оренбург, ул. Ямашева,6