АН АДРЕСА
maximova-adresa@yandex.ru
Скажите продавцу, что вы нашли объявление на 156.ru
1
/
3
7 055 000 ₽
14
Оренбург
АН АДРЕСА
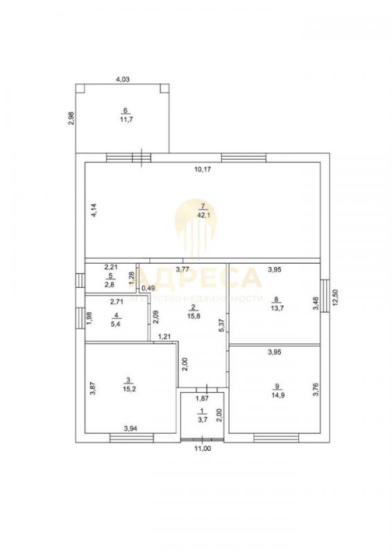
Дом расположен на территории которая не была затоплена! Новый дом! В современном посёлке! Дом качественной постройки! С пред чистовой отделкой!Так же есть Предложение домов от 90 до 140 кв. с гаражом, и без. Есть выбор по планировкам.Внутренняя отделка: - Теплый пол по всему дому. - Отштукатурены стены, полусухая стяжка.- Натяжные потолки, розетки, выключатели. - Окна -рехау.Общая площадь - 132 м2.Участок 4,5 соток.Фундамент: Фундамент-свайно-ростверговыйСтены: керамзитоблок (20)+ утеплитель (10)+ облицовочный кирпич.(1,5)Крыша: утепленная +металлочерепица. Коммуникации:Дом сдаётся с заведенными коммуникациями: газ, свет, центральное водоснабжение, автономная канализация.Планировка: Кухня-гостиная с выходом на террасу, 2 спальни, санузел, котельная, коридор, крыльцо, терраса.
О поселке:Приуралье – большой, развитый пригородный поселок со своей инфраструктурой. до города 20 мин на автобусе , 10 мин на машине. Земли ИЖС. Сельская прописка (низкие коммунальные платежи, дешёвый полис ОСАГО и т.д.).
Инфраструктура:Дороги отсыпаны, зимой чистятся, в дальнейшем будет асфальт. Есть остановка общественного транспорта, откуда на автобусе можно доехать до Оренбурга.В поселке есть свой новый детский сад, торговый центр, продуктовые магазины, детские площадки. Есть школьная развозка в новую школу п. Экодолье. В самом посёлке планируется постройка своей школы.Форма расчёта - наличный расчет.- продажа вашего жилья через наше агентство.- ипотека (окажем помощь в одобрении).- материнский капитал.- различные сертификаты, В ТОМ ЧИСЛЕ НА ПОКУПКУ/СТРОИТЕЛЬСТВО ЖИЛЬЯ ПОСТРАДАВШИМ ОТ ПАВОДКА!Так же есть предложение домов и таунхаусов и в других направлениях :в коттеджном поселке Марьино, п. Приуралье, Экодолье, п. Соловьевка, п.Покровка, с Нежинка, снт АвиаторНаш офис ул. Восточная 42/3
ID объекта в нашей базе: 1154
Тип недвижимости
Адрес
Этажность
Площадь
Дом
Россия, Оренбургская обл, Оренбург, 8
1
132
ID объявления
Обновлено
Создано
Действительно до
841649
2026-03-10 05:22:04
2026-03-10 05:22:04
2026-06-08 05:22:04

6 146 000 ₽
Дом
Россия, Оренбургская обл, Оренбург, Array

3 800 000 ₽
1-комн. квартира
Россия, Оренбургская обл, Оренбург, пр-кт. Победы,174/1

7 649 000 ₽
2-комн. квартира
Россия, Оренбургская обл, Оренбург, ул. Карпова,3/1

3 455 000 ₽
3-комн. квартира
Россия, Оренбургская обл, Оренбург, ул. Восстания,77

4 000 000 ₽
3-комн. квартира
Россия, Оренбургская обл, Оренбург, проезд. Коммунаров,24

4 700 000 ₽
1-комн. квартира
Россия, Оренбургская обл, Оренбург, пр-кт. Победы,149/3

4 710 000 ₽
1-комн. квартира
Россия, Оренбургская обл, Оренбург, пер. Слесарный,7

7 400 000 ₽
Дом
Россия, Оренбургская обл, Оренбург, переулок Аптекарьский

3 649 000 ₽
3-комн. квартира
Россия, Оренбургская обл, Оренбург, ул. Восточная,84

1 550 000 ₽
Дом
Россия, Оренбургская обл, Оренбург, посёлок Подмаячный, улица Квартал № 20, 139

2 300 000 ₽
Гараж
Россия, Оренбургская обл, Оренбург, ул. Просторная,8

1 699 000 ₽
1-комн. квартира
Россия, Оренбургская обл, Оренбург, ул. 1 Мая,148

9 990 000 ₽
Дом
Россия, Оренбургская обл, Оренбург, 58

8 999 000 ₽
Дом
Россия, Оренбургская обл, Оренбург, Рублева

2 900 000 ₽
3-комн. квартира
Россия, Оренбургская обл, Оренбург, ул. Розы Люксембург,188

2 630 000 ₽
1-комн. квартира
Россия, Оренбургская обл, Оренбург, Пригородный,пр-кт Звёздный 128 Д

8 000 000 ₽
Земельный участок
Россия, Оренбургская обл, Оренбург, оренбургская обл., р-н Оренбургский, с/с Весенний, с/т "Солнечный", Линия 9, Участок №6

2 900 000 ₽
1-комн. квартира
Россия, Оренбургская обл, Оренбург, ул. Озеленителей,34

2 950 000 ₽
Дом
Россия, Оренбургская обл, Оренбург, ул. Макаровой-Мутновой,195

4 700 000 ₽
Дом
Россия, Оренбургская обл, Оренбург, СНТ Строитель, ул. Сиреневая

850 000 ₽
Земельный участок
Россия, Оренбургская обл, Оренбург, Оренбургская область, г. Оренбург, С/Т Калина Красная, 380

8 500 000 ₽
Дом
Россия, Оренбургская обл, Оренбург, Рублева 43
1 000 000 ₽
Дом
Оренбургская обл, Кувандыкский р-н, село Сара

6 000 000 ₽
3-комн. квартира
Россия, Оренбургская обл, Оренбург, ул. Юркина,2