АН АДРЕСА
Lilia.k-adresa@yandex.ru
Скажите продавцу, что вы нашли объявление на 156.ru
1
/
3
3 850 000 ₽
14
Оренбург
АН АДРЕСА
ПРЕДЛАГАЕМ ВАШЕМУ ВНИМАНИЮ ПРОСТОРНУЮ И УЮТНУЮ ДВУХКОМНАТНУЮ КВАРТИРУ!
КВАРТИРА С НОВЫМ ОТЛИЧНЫМ РЕМОНТОМ, ЧТО ПОЗВОЛЯЕТ ЗАЕХАТЬ и ЖИТЬ!
О КВАРТИРЕ:
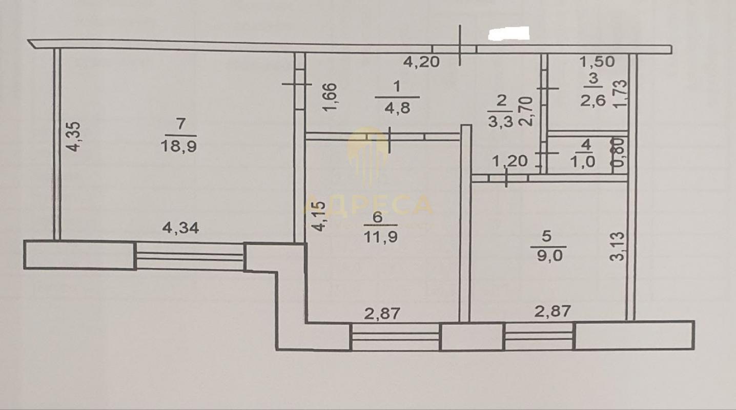
Общая площадь квартиры – 51.5 кв.м Очень хорошая планировка – квадратный просторный зал площадью 18.9 кв.м,, светлая спальня 11,9 кв.м., и уютная кухня 9 кв.м. В квартире выполнен качественный ремонт. Во всех комнатах пластиковые окна. С/У раздельный в кафеле. Качественные деревянные двери. Полы с подогревом! Из мебели остается вместительный угловой кухонный гарнитур. Сплит система. Коммуникации все центральные. Квартира очень теплая. Соседи очень хорошие и дружные.
ИНФРАСТРУКТУРА:
—д/с 106.
—СОШ №11
—Магазины Пятерочка, Магнит, Красное/белое, аптеки и др.;
Остановка общественного транспорта в шаговой доступности: маршруты: 78Н (62), 23.Рассмотрим все формы расчета: ипотека, сертификаты, наличный и безналичный расчет.
- Поможем купить в ипотеку! Узнавайте по телефону подробные условия.
Юридическое сопровождение сделки.
Если вам понравился этот вариант, но у вас ещё не продана своя недвижимость, предложите нам, возможно у нас прямо сейчас есть на неё покупатель.
ID объекта в нашей базе: 1394
Тип недвижимости
Адрес
Этажность
Этаж
Площадь
2-комн. квартира
Россия, Оренбургская обл, Оренбург, ул. Авиационная,20
5
1
51.5
ID объявления
Обновлено
Создано
Действительно до
829669
2026-02-16 05:28:25
2026-02-16 05:28:25
2026-05-17 05:28:25

6 800 000 ₽
Дом
Россия, Оренбургская обл, Оренбург, г.Оренбург,СНТ Фонтан,Виноградная 443

3 850 000 ₽
2-комн. квартира
Россия, Оренбургская обл, Оренбург, ул. Авиационная,20

7 000 000 ₽
Дом
Россия, Оренбургская обл, Оренбург, г. Оренбург, пос. Весенний, СНТСН Карачи, ул. Буравиков, 209

1 550 000 ₽
Дом
Россия, Оренбургская обл, Оренбург, посёлок Подмаячный, улица Квартал № 20, 139

3 750 000 ₽
1-комн. квартира
Россия, Оренбургская обл, Оренбург, ул. Мира,3/1

2 499 000 ₽
2-комн. квартира
Россия, Оренбургская обл, Оренбург, ул. 1 Мая,148

5 300 000 ₽
2-комн. квартира
Россия, Оренбургская обл, Оренбург, пр-кт. Победы,155А

5 350 000 ₽
2-комн. квартира
Россия, Оренбургская обл, Оренбург, ул. Ямашева,6

4 799 000 ₽
2-комн. квартира
Россия, Оренбургская обл, Оренбург, ул. Чкалова,3/2

3 649 000 ₽
3-комн. квартира
Россия, Оренбургская обл, Оренбург, ул. Восточная,84

7 100 000 ₽
Дом
Россия, Оренбургская обл, Оренбург, 40

950 000 ₽
Дом
Россия, Оренбургская обл, Оренбург, с.Беляевка

8 000 000 ₽
Земельный участок
Россия, Оренбургская обл, Оренбург, оренбургская обл., р-н Оренбургский, с/с Весенний, с/т "Солнечный", Линия 9, Участок №6

250 000 ₽
Дом
Россия, Оренбургская обл, Оренбург, ул. 13 Линия,105

2 850 000 ₽
1-комн. квартира
Россия, Оренбургская обл, Оренбург, ул. Юркина,2

4 000 000 ₽
2-комн. квартира
Россия, Оренбургская обл, Оренбург, пр-кт. Братьев Коростелевых,68/1

8 999 000 ₽
Дом
Россия, Оренбургская обл, Оренбург, Рублева

8 680 000 ₽
Дом
Россия, Оренбургская обл, Оренбург, ул. Кишиневская, null

2 550 000 ₽
Дом
Россия, Оренбургская обл, Оренбург, ул. 2 Маячный Спуск,14

7 000 000 ₽
Помещение
Россия, Оренбургская обл, Оренбург, Тамарова 1/2

12 000 000 ₽
3-комн. квартира
Россия, Оренбургская обл, Оренбург, ул. Цвиллинга,68

26 900 000 ₽
Помещение
Россия, Оренбургская обл, Оренбург, ул. Сахалинская,4

5 400 000 ₽
Дом
Россия, Оренбургская обл, Оренбург, СНТ Карачи, ул. Центральная линия, д. 43

4 100 000 ₽
3-комн. квартира
Россия, Оренбургская обл, Оренбург, ул. Авиационная,20