АН АДРЕСА
a.borisova-adresa@yandex.ru
Скажите продавцу, что вы нашли объявление на 156.ru
1
/
3
9 161 690 ₽
8
Оренбург
АН АДРЕСА
Документы готовы, быстрый выход на сделку!!!!ДоступностьСемейная ипотека 6 %, сельская ипотека 3 %
Наши дома подходят под субсидированные ипотечные программы, военной ипотекой, различными жилищными сертификатами и материнским капиталом. Все это делает покупку максимально удобной и комфортной для наших клиентов, а самое главное выгодной!
Материал стен: газоблоки
Терраса или веранда: покрыты керамогранитом
Лестница: металлический каркас
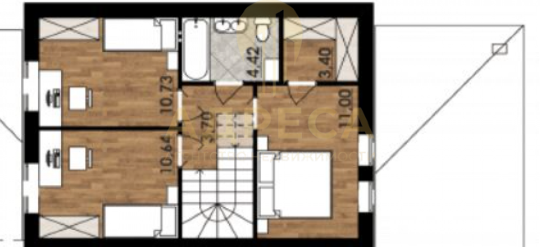
Санузел: на 1 и 2 этажах
Коммуникации: электричество, газ, отопление, канализация
Ремонт: улучшенная предчистовая отделка
Интернет и ТВ: Wi-Fi, телевидение
Парковка: парковочное место
Транспортная доступность: асфальтированная дорога, остановка общественного транспорта
Инфраструктура: магазин, аптека, детский сад, школа
Расстояние до центра города: 12 км
В подарок: территория участка огорожена забором, смонтированы въездные ворота под автомобиль и калитка с электромеханическим замком, уличное освещение, установлен почтовый ящик. Вокруг дома залита бетонная отмостка, бетонная дорожка и площадка под автомобиль, выполнено уличное освещение.
Внутренная отделка
стены оштукатурены по маякам, отшпатлеваны под обои
полы – утепленная армированная бетонная стяжка с последующим устройством наливного пола
установлена пластиковая подоконная доска, дверные и оконные откосы облагорожены
Качество
Наши дома построены из заводского газобетонного блока КОТТЕДЖ, а фасад облицован керамическим кирпичом. Установлены качественные ПВХ окна с двойным мультифункциональным стеклопакетом и надежная металлическая дверь с терморазрывом. В качестве кровельного покрытия выбрана двухслойная гибкая черепица Shinglas от компании ТЕХНОНИКОЛЬ, карниз подшит металлическими софитами, смонтирована водосточная система производства ТЕХНОНИКОЛЬ.
Инфраструктура
Поселок имеет развитую инфраструктуру, в шаговой доступности школа, детский сад, сетевые магазины, аптеки и ФАП. Поселок имеет хорошую транспортную доступность, ходит общественный транспорт. Сельская прописка и тарифы гарантируют вам экономию бюджета на обслуживание дома.
ОТ НАС: помощь в одобрении ипотеки ,полное юридическое сопровождение, помощь в продаже вашей недвижимости, работа с сертификатами.ПРОСМОТР В УДОБНОЕ ДЛЯ ВАС ВРЕМЯ, ПО ПРЕДВАРИТЕЛЬНОЙ ДОГОВОРЕННОСТИ!
ID объекта в нашей базе: 1537
Адрес
Этажность
Площадь
Россия, Оренбургская обл, Оренбург, 41 а
2
102
ID объявления
Обновлено
Создано
Действительно до
819356
2026-01-28 05:35:07
2026-01-28 05:35:07
2026-04-28 05:35:07

7 150 000 ₽
2-комн. квартира
Россия, Оренбургская обл, Оренбург, ул. Поляничко,7/1

6 500 000 ₽
Дом
Россия, Оренбургская обл, Оренбург, Array

9 161 690 ₽
Россия, Оренбургская обл, Оренбург, 41 а

7 600 000 ₽
Дом
Россия, Оренбургская обл, Оренбург, Оренбургская обл., г. Оренбург, СНТ Росинка, 26

5 550 000 ₽
Дом
Россия, Оренбургская обл, Оренбург, Подгородняя Покровка, ул. Яблоневая, д 300

13 860 000 ₽
3-комн. квартира
Россия, Оренбургская обл, Оренбург, ул. Цвиллинга,68

3 650 000 ₽
1-комн. квартира
Россия, Оренбургская обл, Оренбург, ул. Мира,3/1

990 000 ₽
Дача
Россия, Оренбургская обл, Оренбург, СНТ Искра (около д. Аввакумово), 8, Калининский муниципальный округ, Тверская область

4 520 000 ₽
3-комн. квартира
Россия, Оренбургская обл, Оренбург, ул. Салмышская,3

8 699 000 ₽
Дом
Россия, Оренбургская обл, Оренбург, ул. Чебеньковская,24

4 580 000 ₽
1-комн. квартира
Россия, Оренбургская обл, Оренбург, пер. Слесарный

1 550 000 ₽
Дом
Россия, Оренбургская обл, Оренбург, 197

2 550 000 ₽
Дом
Россия, Оренбургская обл, Оренбург, ул. 2 Маячный Спуск,14

7 870 000 ₽
Дом
Россия, Оренбургская обл, Оренбург, Земская 19

1 100 000 ₽
2-комн. квартира
Россия, Оренбургская обл, Оренбург, ул. Геофизиков,3А

8 000 000 ₽
Земельный участок
Россия, Оренбургская обл, Оренбург, оренбургская обл., р-н Оренбургский, с/с Весенний, с/т "Солнечный", Линия 9, Участок №6

6 330 000 ₽
3-комн. квартира
Россия, Оренбургская обл, Оренбург, пер. Неплюева,4

635 000 ₽
Земельный участок
Россия, Оренбургская обл, Оренбург, 21б

4 710 000 ₽
1-комн. квартира
Россия, Оренбургская обл, Оренбург, пер. Слесарный

5 950 000 ₽
Дом
Россия, Оренбургская обл, Оренбург, 12

6 499 000 ₽
Дом
Россия, Оренбургская обл, Оренбург, г.Оренбург,СНТ Фонтан,Виноградная 443
1 000 000 ₽
Дом
Оренбургская обл, Кувандыкский р-н, село Сара

договорная

1 650 000 ₽
Земельный участок
Россия, Оренбургская обл, Оренбург, СНТ "Заря", ул.Яблоневая, 29