АН АДРЕСА
seliverstova-adresa@yandex.ru
Скажите продавцу, что вы нашли объявление на 156.ru
1
/
3
8 699 000 ₽
11
Оренбург
АН АДРЕСА
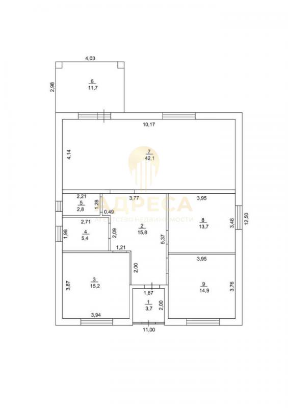
Продаётся 2-х этажный дом с земельным участком площадью 6 соток. Дом расположен в тихом и уютном районе. На втором этаже находятся две полноценные спальни, которые подойдут для комфортного проживания всей семьи.На первом этаже расположена просторная кухня, гостиная, санузел и прихожая. В доме установлено газовое отопление с 2-х контурным котлом, что обеспечивает комфортную температуру в любое время года.Также на первом этаже имеется большая спальня со своим санузлом и душевой кабиной.На полу первого этажа установлен тёплый пол с плиткой, что создает дополнительный комфорт.В доме подведено электричество напряжением 380 вольт. Дом расположен в районе ТЦ Гулливер, где имеется развитая инфраструктура для комфортного проживания. На участке залит фундамент под гараж и баню. Канализация центральная. Рядом находятся школы, детские сады и лицей. Также в шаговой доступности находится ТРЦ Гулливер. Материал стен: шлакоблок, кирпич и утеплительДля получения дополнительной информации или для организации просмотра, пожалуйста, свяжитесь с нами по указанному номеру телефона. Мы всегда рады помочь вам с выбором вашего нового дома!
ID объекта в нашей базе: 546
Тип недвижимости
Адрес
Этажность
Площадь
Дом
Россия, Оренбургская обл, Оренбург, ул. Чебеньковская,24
2
116.8
ID объявления
Обновлено
Создано
Действительно до
868234
2026-04-24 05:15:54
2026-04-24 05:15:54
2026-07-23 05:15:54

1 000 000 ₽
Земельный участок
Россия, Оренбургская обл, Оренбург, СНТ Аэлита, ул. Зеленая

3 100 000 ₽
3-комн. квартира
Россия, Оренбургская обл, Оренбург, ул. Котова,95

6 800 000 ₽
Дом
Россия, Оренбургская обл, Оренбург, г.Оренбург,СНТ Фонтан,Виноградная 443

4 650 000 ₽
1-комн. квартира
Россия, Оренбургская обл, Оренбург, пер. Слесарный,7

6 327 262 ₽
2-комн. квартира
Россия, Оренбургская обл, Оренбург, 151/1

2 600 000 ₽
Дом
Россия, Оренбургская обл, Оренбург, ул. Чехова,38

4 799 000 ₽
2-комн. квартира
Россия, Оренбургская обл, Оренбург, ул. Чкалова,3/2

3 000 000 ₽
3-комн. квартира
Россия, Оренбургская обл, Оренбург, ул. Восстания,77

3 899 000 ₽
1-комн. квартира
Россия, Оренбургская обл, Оренбург, ул. Чкалова,70

950 000 ₽
Дом
Россия, Оренбургская обл, Оренбург, с.Беляевка

7 800 000 ₽
Дом
Россия, Оренбургская обл, Оренбург, г. Оренбург, пос. Кушкуль, ул. Казанская, 36

2 900 000 ₽
1-комн. квартира
Россия, Оренбургская обл, Оренбург, ул. Озеленителей,34

2 400 000 ₽
1-комн. квартира
Россия, Оренбургская обл, Оренбург, пр-кт. Победы,166

6 799 000 ₽
Дом
Россия, Оренбургская обл, Оренбург, ул. Северная

2 999 999 ₽
Дом
Россия, Оренбургская обл, Оренбург, 23

4 390 000 ₽
Дом
Россия, Оренбургская обл, Оренбург, мкр. Солнечный, ул. Ивановская, 3А

5 206 660 ₽
2-комн. квартира
Россия, Оренбургская обл, Оренбург, ул. Котова,34

6 500 000 ₽
Дом
Россия, Оренбургская обл, Оренбург, Array

6 600 000 ₽
2-комн. квартира
Россия, Оренбургская обл, Оренбург, пр-кт. Победы,149/3

7 990 000 ₽
3-комн. квартира
Россия, Оренбургская обл, Оренбург, 149/3

7 400 000 ₽
Дом
Россия, Оренбургская обл, Оренбург, переулок Аптекарьский

7 200 000 ₽
2-комн. квартира
Россия, Оренбургская обл, Оренбург, пр-кт. Победы,149/1

6 000 000 ₽
3-комн. квартира
Россия, Оренбургская обл, Оренбург, ул. Юркина,2

7 100 000 ₽
Дом
Россия, Оренбургская обл, Оренбург, 40