АН АДРЕСА
anufriev-adresa@yandex.ru
Скажите продавцу, что вы нашли объявление на 156.ru
1
/
3
7 870 000 ₽
7
Оренбург
АН АДРЕСА
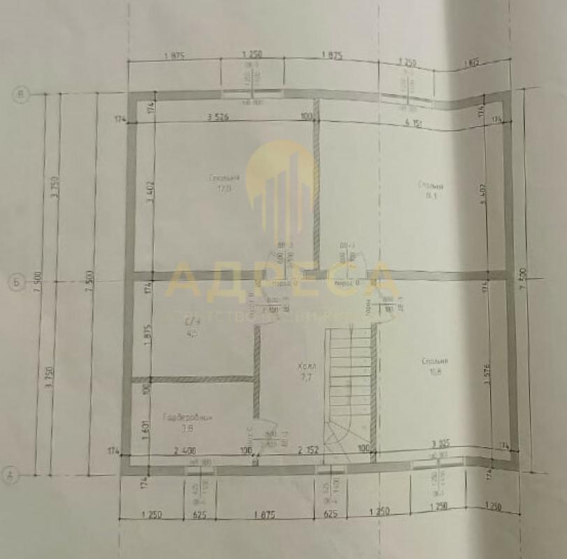
Продается дом в ЭЛИТНОЙ части поселка Кушкуль, по адресу: улица Земская 19.Площадь дома 104 м.кв.Площадь участка 10сот.Газоснабжение: центральное.Водоснабжение: скважина 14м, в доме (есть возможность подключения к центральному)Водоотведение: локальное 4кольца по 1,5м (есть возможность подключения к центральному)Материалы постройки: СИП-панели короед.Фундамент: сваи.Электрика вся по госту, доступ ко всем коробкам.Также максимально доступ ко всем коммуникациям водоотвода.Отопление газ.Состояние ремонта на фото, но лучше посмотреть в живую.Инфраструктура: Школа № 21,так-же имеются сетевые магазины.Возникли вопросы звоните, отвечу.Обременений нет.Просмотр по договоренности в удобное время.
✅ Предоставление консультаций по вопросам, связанным с покупкой недвижимости, в том числе с использованием кредитных средств, жилищных сертификатов, материнского (семейного) капитала.
✅ Помощь в формировании пакета документов (для каждого объекта индивидуально), необходимых для оформления сделки купли-продажи.
✅ Подбор индивидуальной программы кредитования, согласование в банках ипотечной заявки и объекта, на наиболее выгодных для заемщика условиях.
✅ ЭКСКЛЮЗИВНО: ипотека без справок и подтверждения дохода; одобрение ипотеки при отсутствии первоначального взноса (трейд-ин); доступна опция понижения ставки по ипотеке, применение скидки от нашего агентства; проведение сделки дистанционно.
✅ Наш офис ул. Восточная 42/3 АН АДРЕСА
ID объекта в нашей базе: 1114
Тип недвижимости
Адрес
Этажность
Площадь
Дом
Россия, Оренбургская обл, Оренбург, Земская 19
2
104
ID объявления
Обновлено
Создано
Действительно до
865698
2026-04-20 05:21:02
2026-04-20 05:21:02
2026-07-19 05:21:02

6 533 000 ₽
3-комн. квартира
Россия, Оренбургская обл, Оренбург, ул. Илекская 2/1

5 610 680 ₽
2-комн. квартира
Россия, Оренбургская обл, Оренбург, ул. Яицкая

8 000 000 ₽
Дом
Россия, Оренбургская обл, Оренбург, ул. Луговая

13 860 000 ₽
3-комн. квартира
Россия, Оренбургская обл, Оренбург, ул. Цвиллинга,68

4 699 000 ₽
1-комн. квартира
Россия, Оренбургская обл, Оренбург, пер. Селивановский,24

1 000 000 ₽
Земельный участок
Россия, Оренбургская обл, Оренбург, СНТ Аэлита, ул. Зеленая

3 950 000 ₽
3-комн. квартира
Россия, Оренбургская обл, Оренбург, ул. 1 Мая,148

3 855 280 ₽
2-комн. квартира
Россия, Оренбургская обл, Оренбург, Array

6 800 000 ₽
Дом
Россия, Оренбургская обл, Оренбург, ул. Хабаровская,63

2 350 000 ₽
1-комн. квартира
Россия, Оренбургская обл, Оренбург, ул. Авиационная,22/1

5 600 000 ₽
1-комн. квартира
Россия, Оренбургская обл, Оренбург, ул. Уральская,2/8

6 641 710 ₽
3-комн. квартира
Россия, Оренбургская обл, Оренбург, ул. Березка,21

4 650 000 ₽
1-комн. квартира
Россия, Оренбургская обл, Оренбург, пер. Слесарный,7

2 550 000 ₽
Дом
Россия, Оренбургская обл, Оренбург, ул. 2 Маячный Спуск,14

990 000 ₽
Дача
Россия, Оренбургская обл, Оренбург, СНТ Искра (около д. Аввакумово), 8, Калининский муниципальный округ, Тверская область

4 599 000 ₽
3-комн. квартира
Россия, Оренбургская обл, Оренбург, ул. Дружбы,3/4

4 000 000 ₽
Дом
Россия, Оренбургская обл, Оренбург, Оренбургская область, Оренбургский район, Весенний с/с, СНТ Карачи, 7 линия, 53

1 650 000 ₽
1-комн. квартира
Россия, Оренбургская обл, Оренбург, пр-кт. Дзержинского,36/2

7 550 000 ₽
Земельный участок
Россия, Оренбургская обл, Оренбург, 6

3 790 000 ₽
1-комн. квартира
Россия, Оренбургская обл, Оренбург, ул. Салмышская,64/2

3 200 000 ₽
1-комн. квартира
Россия, Оренбургская обл, Оренбург, ул. Лабужского,20

6 500 000 ₽
Дом
Россия, Оренбургская обл, Оренбург, Array

6 600 000 ₽
2-комн. квартира
Россия, Оренбургская обл, Оренбург, пр-кт. Победы,149/3

7 850 000 ₽
2-комн. квартира
Россия, Оренбургская обл, Оренбург, ул. Березка,21