АН АДРЕСА
a.borisova-adresa@yandex.ru
Скажите продавцу, что вы нашли объявление на 156.ru
1
/
3
9 161 690 ₽
9
Оренбург
АН АДРЕСА
Документы готовы, быстрый выход на сделку!!!!ДоступностьСемейная ипотека 6 %, сельская ипотека 3 %
Наши дома подходят под субсидированные ипотечные программы, военной ипотекой, различными жилищными сертификатами и материнским капиталом. Все это делает покупку максимально удобной и комфортной для наших клиентов, а самое главное выгодной!
Материал стен: газоблоки
Терраса или веранда: покрыты керамогранитом
Лестница: металлический каркас
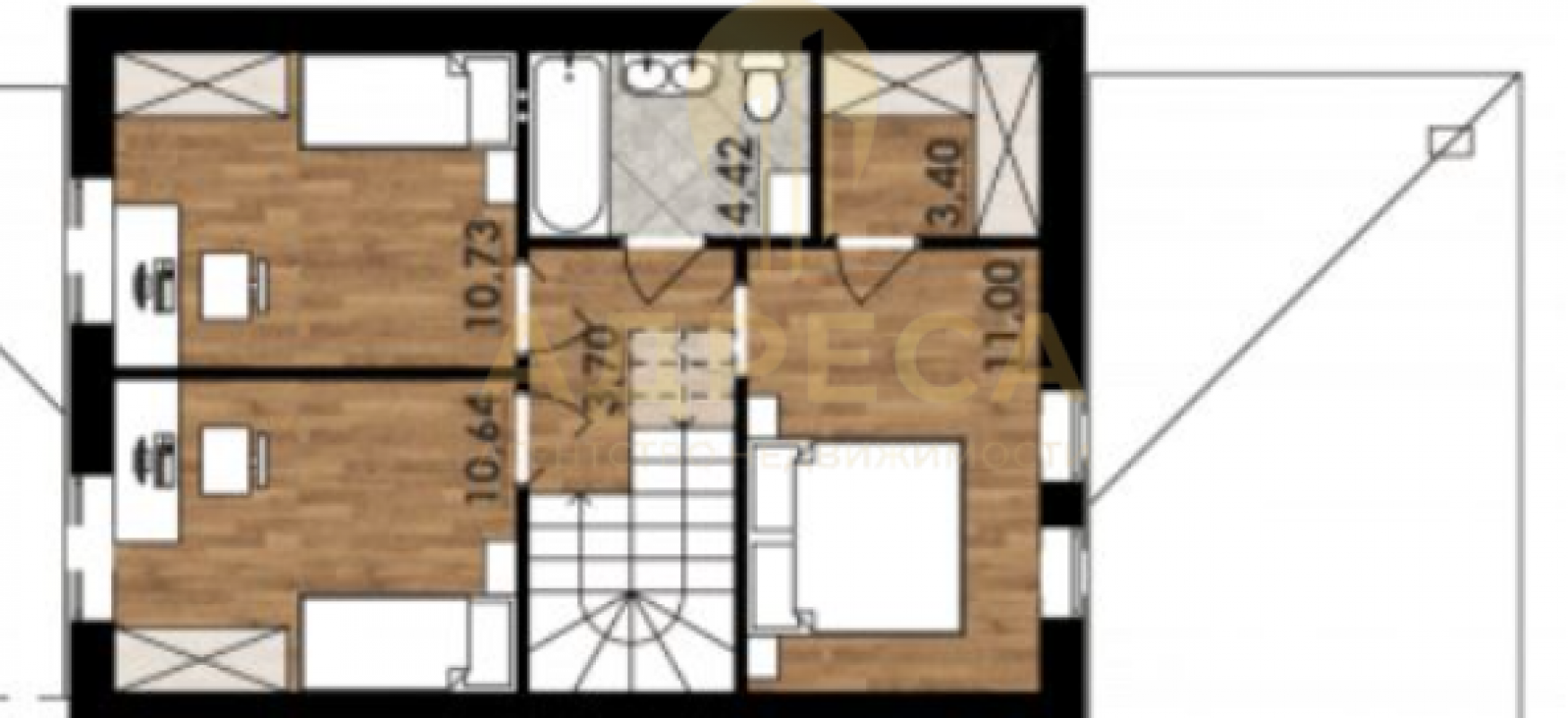
Санузел: на 1 и 2 этажах
Коммуникации: электричество, газ, отопление, канализация
Ремонт: улучшенная предчистовая отделка
Интернет и ТВ: Wi-Fi, телевидение
Парковка: парковочное место
Транспортная доступность: асфальтированная дорога, остановка общественного транспорта
Инфраструктура: магазин, аптека, детский сад, школа
Расстояние до центра города: 12 км
В подарок: территория участка огорожена забором, смонтированы въездные ворота под автомобиль и калитка с электромеханическим замком, уличное освещение, установлен почтовый ящик. Вокруг дома залита бетонная отмостка, бетонная дорожка и площадка под автомобиль, выполнено уличное освещение.
Внутренная отделка
стены оштукатурены по маякам, отшпатлеваны под обои
полы – утепленная армированная бетонная стяжка с последующим устройством наливного пола
установлена пластиковая подоконная доска, дверные и оконные откосы облагорожены
Качество
Наши дома построены из заводского газобетонного блока КОТТЕДЖ, а фасад облицован керамическим кирпичом. Установлены качественные ПВХ окна с двойным мультифункциональным стеклопакетом и надежная металлическая дверь с терморазрывом. В качестве кровельного покрытия выбрана двухслойная гибкая черепица Shinglas от компании ТЕХНОНИКОЛЬ, карниз подшит металлическими софитами, смонтирована водосточная система производства ТЕХНОНИКОЛЬ.
Инфраструктура
Поселок имеет развитую инфраструктуру, в шаговой доступности школа, детский сад, сетевые магазины, аптеки и ФАП. Поселок имеет хорошую транспортную доступность, ходит общественный транспорт. Сельская прописка и тарифы гарантируют вам экономию бюджета на обслуживание дома.
ОТ НАС: помощь в одобрении ипотеки ,полное юридическое сопровождение, помощь в продаже вашей недвижимости, работа с сертификатами.ПРОСМОТР В УДОБНОЕ ДЛЯ ВАС ВРЕМЯ, ПО ПРЕДВАРИТЕЛЬНОЙ ДОГОВОРЕННОСТИ!
ID объекта в нашей базе: 1537
Адрес
Этажность
Площадь
Россия, Оренбургская обл, Оренбург, 41 а
2
102
ID объявления
Обновлено
Создано
Действительно до
859098
2026-04-09 05:30:52
2026-04-09 05:30:52
2026-07-08 05:30:52

3 954 600 ₽
1-комн. квартира
Россия, Оренбургская обл, Оренбург, ул. Юркина, стр. 1

4 000 000 ₽
3-комн. квартира
Россия, Оренбургская обл, Оренбург, проезд. Коммунаров,24

13 860 000 ₽
3-комн. квартира
Россия, Оренбургская обл, Оренбург, ул. Цвиллинга,68

4 700 000 ₽
Дом
Россия, Оренбургская обл, Оренбург, СНТ Строитель, ул. Сиреневая

7 550 000 ₽
Земельный участок
Россия, Оренбургская обл, Оренбург, 6

850 000 ₽
Земельный участок
Россия, Оренбургская обл, Оренбург, 114 а

7 200 000 ₽
2-комн. квартира
Россия, Оренбургская обл, Оренбург, пр-кт. Победы,149/1

1 100 000 ₽
2-комн. квартира
Россия, Оренбургская обл, Оренбург, ул. Геофизиков,3А

9 990 000 ₽
Дом
Россия, Оренбургская обл, Оренбург, 58

8 999 000 ₽
Дом
Россия, Оренбургская обл, Оренбург, Рублева 46

6 533 000 ₽
3-комн. квартира
Россия, Оренбургская обл, Оренбург, ул. Илекская 2/1

4 266 260 ₽
1-комн. квартира
Россия, Оренбургская обл, Оренбург, ул. Фронтовиков,10/4

8 000 000 ₽
2-комн. квартира
Россия, Оренбургская обл, Оренбург, ул. Автомобилистов,13

1 200 000 ₽
Комната
Россия, Оренбургская обл, Оренбург, ул. Элеваторная,9

7 500 000 ₽
Дом
Россия, Оренбургская обл, Оренбург, ул. Ломоносова

2 990 000 ₽
1-комн. квартира
Россия, Оренбургская обл, Оренбург, ул. Лабужского,20

1 750 000 ₽
1-комн. квартира
Россия, Оренбургская обл, Оренбург, ул. Карагандинская,52

3 100 000 ₽
3-комн. квартира
Россия, Оренбургская обл, Оренбург, ул. Восстания,77

3 200 000 ₽
1-комн. квартира
Россия, Оренбургская обл, Оренбург, ул. Лабужского,20
2 399 000 ₽
1-комн. квартира
Россия, Оренбургская обл, Оренбург, с.нежинка ул.фестивальная 29

5 400 000 ₽
Дом
Россия, Оренбургская обл, Оренбург, СНТ Карачи, ул. Центральная линия, д. 43

3 954 600 ₽
2-комн. квартира
Россия, Оренбургская обл, Оренбург, ул. Юркина,6

4 450 000 ₽
1-комн. квартира
Россия, Оренбургская обл, Оренбург, ул. Пролетарская,288/3

3 950 000 ₽
3-комн. квартира
Россия, Оренбургская обл, Оренбург, ул. 1 Мая,148