АН АДРЕСА
info.adresa56@yandex.ru
Скажите продавцу, что вы нашли объявление на 156.ru
1
/
3
5 950 000 ₽
19
Оренбург
АН АДРЕСА
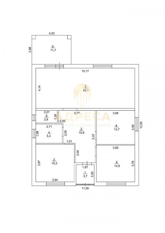
Дом расположен на территории которая не была затоплена! Новый дом! В современном посёлке! Дом качественной постройки! С пред чистовой отделкой!Так же есть Предложение домов до 140 кв. с гаражом, есть выбор по планировкам.Внутренняя отделка: - Теплый пол по всему дому. - Отштукатурены стены, полусухая стяжка.- Натяжные потолки, розетки, выключатели. - Окна -рехау.Общая площадь - 103 м2.Участок 4,5 соток.Фундамент: Фундамент-свайно-ростверговыйСтены: керамзитоблок (20)+ утеплитель (10)+ облицовочный кирпич.(1,5)Крыша: утепленная +металлочерепица. Коммуникации:Дом сдаётся с заведенными коммуникациями: газ, свет, центральное водоснабжение, автономная канализация.Планировка: Кухня-гостиная с выходом на террасу, 2 спальни, санузел, котельная, коридор, крыльцо, терраса.
О поселке:Приуралье – большой, развитый пригородный поселок со своей инфраструктурой. до города 20 мин на автобусе , 10 мин на машине. Земли ИЖС. Сельская прописка (низкие коммунальные платежи, дешёвый полис ОСАГО и т.д.).
Инфраструктура:Дороги отсыпаны, зимой чистятся, в дальнейшем будет асфальт. Есть остановка общественного транспорта, откуда на автобусе можно доехать до Оренбурга.В поселке есть свой новый детский сад, торговый центр, продуктовые магазины, детские площадки. Есть школьная развозка в новую школу п. Экодолье. В самом посёлке планируется постройка своей школы.Форма расчёта - наличный расчет.- продажа вашего жилья через наше агентство.- ипотека (окажем помощь в одобрении).- материнский капитал.- различные сертификаты, В ТОМ ЧИСЛЕ НА ПОКУПКУ/СТРОИТЕЛЬСТВО ЖИЛЬЯ ПОСТРАДАВШИМ ОТ ПАВОДКА!Так же есть предложение домов и таунхаусов и в других направлениях :в коттеджном поселке Марьино, п. Приуралье, Экодолье, п. Соловьевка, п.Покровка, с Нежинка, снт АвиаторНаш офис ул. Восточная 42/3
ID объекта в нашей базе: 1149
Тип недвижимости
Адрес
Этажность
Площадь
Дом
Россия, Оренбургская обл, Оренбург, 12
1
100
ID объявления
Обновлено
Создано
Действительно до
849617
2026-03-24 05:21:52
2026-03-24 05:21:52
2026-06-22 05:21:52

5 950 000 ₽
Дом
Россия, Оренбургская обл, Оренбург, ул. Солнечная,52

3 043 800 ₽
1-комн. квартира
Россия, Оренбургская обл, Оренбург, п. Ростоши, стр.

1 550 000 ₽
Дом
Россия, Оренбургская обл, Оренбург, 197

3 950 000 ₽
2-комн. квартира
Россия, Оренбургская обл, Оренбург, ул. Ялтинская,51/1

1 850 000 ₽
Дом
Россия, Оренбургская обл, Оренбург, ул. Фрунзе 40

4 000 000 ₽
3-комн. квартира
Россия, Оренбургская обл, Оренбург, проезд. Коммунаров,24

550 000 ₽
Земельный участок
Россия, Оренбургская обл, Оренбург, 123

7 400 000 ₽
Дом
Россия, Оренбургская обл, Оренбург, переулок Аптекарьский

9 990 000 ₽
Дом
Россия, Оренбургская обл, Оренбург, 58

4 599 000 ₽
3-комн. квартира
Россия, Оренбургская обл, Оренбург, ул. Дружбы,3/4

7 200 000 ₽
2-комн. квартира
Россия, Оренбургская обл, Оренбург, пр-кт. Победы,149/1

3 954 600 ₽
1-комн. квартира
Россия, Оренбургская обл, Оренбург, ул. Юркина, стр. 1

8 300 000 ₽
Дом
Россия, Оренбургская обл, Оренбург, 21

4 610 000 ₽
1-комн. квартира
Россия, Оренбургская обл, Оренбург, пер. Слесарный,7

2 490 000 ₽
1-комн. квартира
Россия, Оренбургская обл, Оренбург, ул. Лесозащитная,8

3 499 000 ₽
1-комн. квартира
Россия, Оренбургская обл, Оренбург, ул. Беляевская,15

8 300 000 ₽
Дом
Россия, Оренбургская обл, Оренбург, 44

10 150 000 ₽
Дом
Россия, Оренбургская обл, Оренбург, п. Весенний, ул. Агатовая, д. 10

5 600 000 ₽
1-комн. квартира
Россия, Оренбургская обл, Оренбург, ул. Уральская,2/8

5 300 000 ₽
1-комн. квартира
Россия, Оренбургская обл, Оренбург, пр-кт. Победы,155А

4 921 470 ₽
2-комн. квартира
Россия, Оренбургская обл, Оренбург, ул. Озерная 2-я

9 000 000 ₽
Дом
Россия, Оренбургская обл, Оренбург, Ивановский сельсовет,п.Приуралье,ул.Рублёва

3 954 600 ₽
2-комн. квартира
Россия, Оренбургская обл, Оренбург, ул. Юркина,6

8 680 000 ₽
Дом
Россия, Оренбургская обл, Оренбург, ул. Кишиневская, null