АН АДРЕСА
strel.921-adresa56@yandex.ru
Скажите продавцу, что вы нашли объявление на 156.ru
1
/
3
7 000 050 ₽
6
Оренбург
АН АДРЕСА
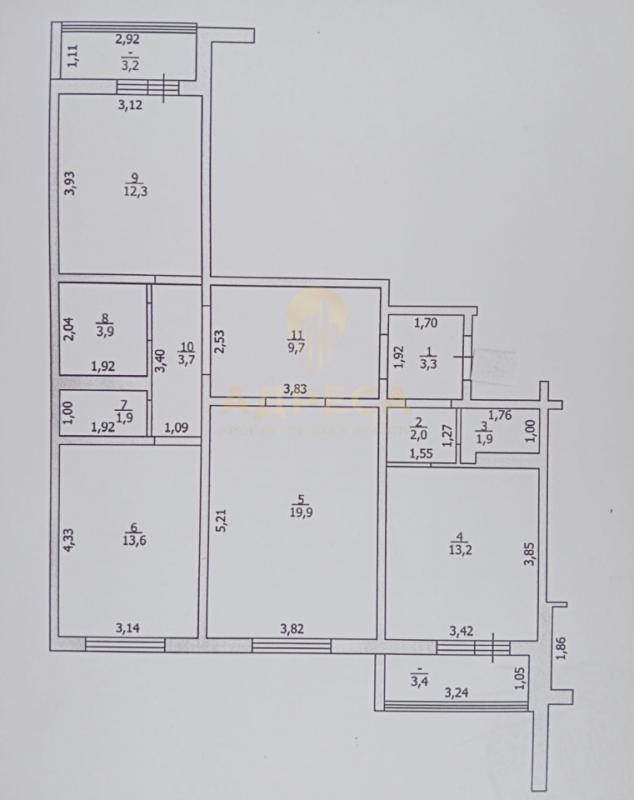
Продаётся просторная трёхкомнатная квартира на комфортном 9 этаже.Район с развитой инфраструктурой: магазины, рынок "Петровский", школа №8, №32, Пушкинский лицей, детский сад №4, №140. В пешей доступности культурный комплекс «Национальная деревня» и парк им. Ю.А. Гагарина.Идеальное предложение для семьи, которая ценит комфортное проживание.Ключевые параметры:· Общая площадь: 85,4 м².· Этаж: 9/16.· Комнаты: изолированные.Описание и преимущества:· Современный ремонт: Полы залиты и выровнены, стены идеально ровные, полностью заменена вся электрическая проводка.· Отделка: Ванная, санузел отделаны современным кафелем.· Комфорт и технологии: В ванной установлен «тёплый пол», в гостиной мощная сплит-система. Высокие потолки 2,9 метра.· Функциональность: Удобная кухня 14 м² с встроенной мебелью "Мария". Есть гардеробная комната со стиральной машинойИнфраструктура и двор:· Во дворе — зона для барбекю, современная детская и спортивная площадки, хоккейная коробка.· В шаговой доступности всё необходимое: аптека, почта, продуктовые магазины.· Круглосуточное видеонаблюдение (Уфанет) в подъездах и лифтах для вашей безопасности.Транспортная развязка:· Остановка общественного транспорта в 3х минутах ходьбы. Автобусы № 7, 20, 79Н, 53Н позволят добраться в любую точку города без проблем.· Рядом расположены улицы: Алтайская, Карагандинская, Пр. Гагарина, Лесозащитная.✅Если у Вас не продан объект недвижимости, но Вы хотите приобрести наш, мы готовы помочь Вам реализовать эту мечту! Наша компания всегда готова предложить Вам лучшие варианты решения, которые соответствуют Вашим потребностям!Звоните и записывайтесь на просмотр!!!
ID объекта в нашей базе: 1726
Тип недвижимости
Адрес
Этажность
Этаж
Площадь
3-комн. квартира
Россия, Оренбургская обл, Оренбург, ул. Мира,3/1
16
9
85.4
ID объявления
Обновлено
Создано
Действительно до
835304
2026-02-26 05:41:40
2026-02-26 05:41:40
2026-05-27 05:41:40

8 300 000 ₽
Дом
Россия, Оренбургская обл, Оренбург, 21

2 850 000 ₽
1-комн. квартира
Россия, Оренбургская обл, Оренбург, ул. Центральная,16

5 300 000 ₽
2-комн. квартира
Россия, Оренбургская обл, Оренбург, ул. Планерная,4

3 560 000 ₽
1-комн. квартира
Россия, Оренбургская обл, Оренбург, ул. Беляевская,15
1 000 000 ₽
Дом
Оренбургская обл, Кувандыкский р-н, село Сара

6 799 000 ₽
Дом
Россия, Оренбургская обл, Оренбург, ул. Северная

4 710 000 ₽
1-комн. квартира
Россия, Оренбургская обл, Оренбург, пер. Слесарный,7

6 300 000 ₽
2-комн. квартира
Россия, Оренбургская обл, Оренбург, ул. Братьев Хусаиновых,8

5 150 000 ₽
Дом
Россия, Оренбургская обл, Оренбург, ул. Степана Разина,65

6 800 000 ₽
Дом
Россия, Оренбургская обл, Оренбург, г.Оренбург,СНТ Фонтан,Виноградная 443

6 000 000 ₽
Земельный участок
Россия, Оренбургская обл, Оренбург, с/т "Солнечный", Линия 9, участок №6

43 000 000 ₽
Помещение
Россия, Оренбургская обл, Оренбург, ул. Степана Разина,125

850 000 ₽
Земельный участок
Россия, Оренбургская обл, Оренбург, Оренбургская область, г. Оренбург, С/Т Калина Красная, 380

4 610 000 ₽
1-комн. квартира
Россия, Оренбургская обл, Оренбург, пер. Слесарный,7

8 680 000 ₽
Дом
Россия, Оренбургская обл, Оренбург, ул. Кишиневская, null

2 900 000 ₽
3-комн. квартира
Россия, Оренбургская обл, Оренбург, ул. Розы Люксембург,188

8 590 000 ₽
Дом
Россия, Оренбургская обл, Оренбург, ул. Цвиллинга,88/2

4 100 000 ₽
3-комн. квартира
Россия, Оренбургская обл, Оренбург, ул. Авиационная,20

6 800 000 ₽
Дом
Россия, Оренбургская обл, Оренбург, ул. Хабаровская,63

670 000 ₽
Земельный участок
Россия, Оренбургская обл, Оренбург, 21б

8 700 000 ₽
Дом
Россия, Оренбургская обл, Оренбург, Новороссийская 52

6 900 000 ₽
3-комн. квартира
Россия, Оренбургская обл, Оренбург, ул. Рокоссовского,3

1 850 000 ₽
Дом
Россия, Оренбургская обл, Оренбург, ул. Фрунзе 40

4 500 000 ₽
1-комн. квартира
Россия, Оренбургская обл, Оренбург, ул. Уральская,2/8