АН АДРЕСА
info.adresa56@yandex.ru
Скажите продавцу, что вы нашли объявление на 156.ru
1
/
3
5 950 000 ₽
19
Оренбург
АН АДРЕСА
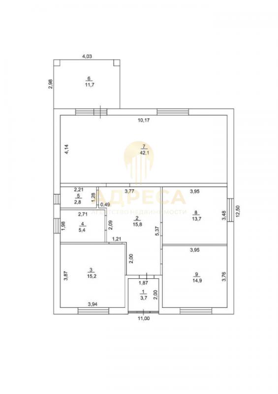
Дом расположен на территории которая не была затоплена! Новый дом! В современном посёлке! Дом качественной постройки! С пред чистовой отделкой!Так же есть Предложение домов до 140 кв. с гаражом, есть выбор по планировкам.Внутренняя отделка: - Теплый пол по всему дому. - Отштукатурены стены, полусухая стяжка.- Натяжные потолки, розетки, выключатели. - Окна -рехау.Общая площадь - 103 м2.Участок 4,5 соток.Фундамент: Фундамент-свайно-ростверговыйСтены: керамзитоблок (20)+ утеплитель (10)+ облицовочный кирпич.(1,5)Крыша: утепленная +металлочерепица. Коммуникации:Дом сдаётся с заведенными коммуникациями: газ, свет, центральное водоснабжение, автономная канализация.Планировка: Кухня-гостиная с выходом на террасу, 2 спальни, санузел, котельная, коридор, крыльцо, терраса.
О поселке:Приуралье – большой, развитый пригородный поселок со своей инфраструктурой. до города 20 мин на автобусе , 10 мин на машине. Земли ИЖС. Сельская прописка (низкие коммунальные платежи, дешёвый полис ОСАГО и т.д.).
Инфраструктура:Дороги отсыпаны, зимой чистятся, в дальнейшем будет асфальт. Есть остановка общественного транспорта, откуда на автобусе можно доехать до Оренбурга.В поселке есть свой новый детский сад, торговый центр, продуктовые магазины, детские площадки. Есть школьная развозка в новую школу п. Экодолье. В самом посёлке планируется постройка своей школы.Форма расчёта - наличный расчет.- продажа вашего жилья через наше агентство.- ипотека (окажем помощь в одобрении).- материнский капитал.- различные сертификаты, В ТОМ ЧИСЛЕ НА ПОКУПКУ/СТРОИТЕЛЬСТВО ЖИЛЬЯ ПОСТРАДАВШИМ ОТ ПАВОДКА!Так же есть предложение домов и таунхаусов и в других направлениях :в коттеджном поселке Марьино, п. Приуралье, Экодолье, п. Соловьевка, п.Покровка, с Нежинка, снт АвиаторНаш офис ул. Восточная 42/3
ID объекта в нашей базе: 1149
Тип недвижимости
Адрес
Этажность
Площадь
Дом
Россия, Оренбургская обл, Оренбург, 12
1
100
ID объявления
Обновлено
Создано
Действительно до
832384
2026-02-21 05:22:40
2026-02-21 05:22:40
2026-05-22 05:22:40

900 000 ₽
Комната
Россия, Оренбургская обл, Оренбург, проезд. Промысловый,21

2 850 000 ₽
Дом
Россия, Оренбургская обл, Оренбург, ул. Макаровой-Мутновой,195

4 150 000 ₽
1-комн. квартира
Россия, Оренбургская обл, Оренбург, ул. Мира,3/1

8 700 000 ₽
Дом
Россия, Оренбургская обл, Оренбург, Новороссийская 52

5 350 000 ₽
2-комн. квартира
Россия, Оренбургская обл, Оренбург, ул. Ямашева,6

5 590 000 ₽
3-комн. квартира
Россия, Оренбургская обл, Оренбург, ул. Дружбы,11/2

6 200 000 ₽
Дом
Россия, Оренбургская обл, Оренбург, ул. Луговая

7 599 000 ₽
2-комн. квартира
Россия, Оренбургская обл, Оренбург, ул. Салмышская,34к6

2 350 000 ₽
1-комн. квартира
Россия, Оренбургская обл, Оренбург, ул. Авиационная,22/1

8 250 000 ₽
Дом
Россия, Оренбургская обл, Оренбург, СНТ Авиато- 3, ул. Десантная 43

6 800 000 ₽
Дом
Россия, Оренбургская обл, Оренбург, г. Оренбург, пос. Весенний, СНТСН Карачи, ул. Буравиков, 209

9 400 000 ₽
Дом
Россия, Оренбургская обл, Оренбург, ул. Спортивная,21

7 400 000 ₽
Дом
Россия, Оренбургская обл, Оренбург, переулок Аптекарьский

5 800 000 ₽
Дом
Россия, Оренбургская обл, Оренбург, ул. 5 Линия,17

4 000 000 ₽
2-комн. квартира
Россия, Оренбургская обл, Оренбург, пр-кт. Братьев Коростелевых,68/1

4 800 000 ₽
3-комн. квартира
Россия, Оренбургская обл, Оренбург, ул. Космическая,7/1

1 200 000 ₽
Комната
Россия, Оренбургская обл, Оренбург, ул. Элеваторная,9

5 300 000 ₽
2-комн. квартира
Россия, Оренбургская обл, Оренбург, ул. Планерная,4

7 870 000 ₽
Дом
Россия, Оренбургская обл, Оренбург, Земская 19

2 149 000 ₽
1-комн. квартира
Россия, Оренбургская обл, Оренбург, ул. Конституции СССР,24/1 к 1

6 800 000 ₽
Дом
Россия, Оренбургская обл, Оренбург, ул. Хабаровская,63

3 490 000 ₽
2-комн. квартира
Россия, Оренбургская обл, Оренбург, ул. 8 Марта,1а

850 000 ₽
Земельный участок
Россия, Оренбургская обл, Оренбург, Оренбургская область, г. Оренбург, С/Т Калина Красная, 380

5 900 000 ₽
2-комн. квартира
Россия, Оренбургская обл, Оренбург, ул. Геннадия Донковцева,15