АН АДРЕСА
Lilia.k-adresa@yandex.ru
Скажите продавцу, что вы нашли объявление на 156.ru
1
/
3
3 850 000 ₽
11
Оренбург
АН АДРЕСА
ПРЕДЛАГАЕМ ВАШЕМУ ВНИМАНИЮ ПРОСТОРНУЮ И УЮТНУЮ ДВУХКОМНАТНУЮ КВАРТИРУ!
КВАРТИРА С НОВЫМ ОТЛИЧНЫМ РЕМОНТОМ, ЧТО ПОЗВОЛЯЕТ ЗАЕХАТЬ и ЖИТЬ!
О КВАРТИРЕ:
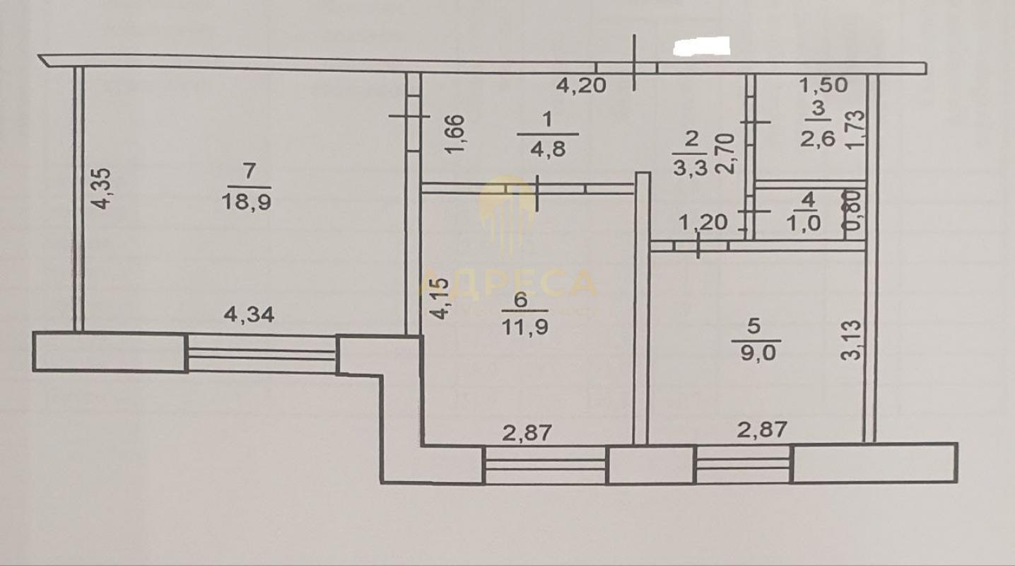
Общая площадь квартиры – 51.5 кв.м Очень хорошая планировка – квадратный просторный зал площадью 18.9 кв.м,, светлая спальня 11,9 кв.м., и уютная кухня 9 кв.м. В квартире выполнен качественный ремонт. Во всех комнатах пластиковые окна. С/У раздельный в кафеле. Качественные деревянные двери. Полы с подогревом! Из мебели остается вместительный угловой кухонный гарнитур. Сплит система. Коммуникации все центральные. Квартира очень теплая. Соседи очень хорошие и дружные.
ИНФРАСТРУКТУРА:
—д/с 106.
—СОШ №11
—Магазины Пятерочка, Магнит, Красное/белое, аптеки и др.;
Остановка общественного транспорта в шаговой доступности: маршруты: 78Н (62), 23.Рассмотрим все формы расчета: ипотека, сертификаты, наличный и безналичный расчет.
- Поможем купить в ипотеку! Узнавайте по телефону подробные условия.
Юридическое сопровождение сделки.
Если вам понравился этот вариант, но у вас ещё не продана своя недвижимость, предложите нам, возможно у нас прямо сейчас есть на неё покупатель.
ID объекта в нашей базе: 1394
Тип недвижимости
Адрес
Этажность
Этаж
Площадь
2-комн. квартира
Россия, Оренбургская обл, Оренбург, ул. Авиационная,20
5
1
51.5
ID объявления
Обновлено
Создано
Действительно до
831877
2026-02-20 05:27:52
2026-02-20 05:27:52
2026-05-21 05:27:52

10 150 000 ₽
Дом
Россия, Оренбургская обл, Оренбург, Дамбовая, 9

2 850 000 ₽
Дом
Россия, Оренбургская обл, Оренбург, ул. Макаровой-Мутновой,195

4 650 000 ₽
1-комн. квартира
Россия, Оренбургская обл, Оренбург, пер. Слесарный,7

8 500 000 ₽
Дом
Россия, Оренбургская обл, Оренбург, Рублева 43

2 990 000 ₽
2-комн. квартира
Россия, Оренбургская обл, Оренбург, пр-кт. Братьев Коростелевых,62

26 900 000 ₽
Помещение
Россия, Оренбургская обл, Оренбург, ул. Сахалинская,4

8 250 000 ₽
Дом
Россия, Оренбургская обл, Оренбург, СНТ Авиато- 3, ул. Десантная 43

4 150 000 ₽
1-комн. квартира
Россия, Оренбургская обл, Оренбург, ул. Мира,3/1

7 599 000 ₽
2-комн. квартира
Россия, Оренбургская обл, Оренбург, ул. Салмышская,34к6

8 700 000 ₽
Дом
Россия, Оренбургская обл, Оренбург, Новороссийская 52

7 200 000 ₽
2-комн. квартира
Россия, Оренбургская обл, Оренбург, пр-кт. Победы,149/1

5 150 000 ₽
Дом
Россия, Оренбургская обл, Оренбург, ул. Степана Разина,65

4 990 000 ₽
1-комн. квартира
Россия, Оренбургская обл, Оренбург, ул. Фронтовиков,8/2

8 490 000 ₽
3-комн. квартира
Россия, Оренбургская обл, Оренбург, ул. Есимова,3

13 860 000 ₽
3-комн. квартира
Россия, Оренбургская обл, Оренбург, ул. Цвиллинга,68

5 450 000 ₽
Дом
Россия, Оренбургская обл, Оренбург, с.Пруды ул.Центральная 25А

3 490 000 ₽
2-комн. квартира
Россия, Оренбургская обл, Оренбург, ул. 8 Марта,1а

9 400 000 ₽
Дом
Россия, Оренбургская обл, Оренбург, ул. Спортивная,21

4 800 000 ₽
3-комн. квартира
Россия, Оренбургская обл, Оренбург, ул. Космическая,7/1

10 150 000 ₽
Дом
Россия, Оренбургская обл, Оренбург, п. Весенний, ул. Агатовая, д. 10

2 149 000 ₽
1-комн. квартира
Россия, Оренбургская обл, Оренбург, ул. Конституции СССР,24/1 к 1

4 700 000 ₽
1-комн. квартира
Россия, Оренбургская обл, Оренбург, пр-кт. Победы,149/3

1 550 000 ₽
Дом
Россия, Оренбургская обл, Оренбург, 197

5 000 000 ₽
1-комн. квартира
Россия, Оренбургская обл, Оренбург, ул. Александрова,1