АН АДРЕСА
a.cherniyazov-adresa@yandex.ru
Скажите продавцу, что вы нашли объявление на 156.ru
1
/
3
6 800 000 ₽
8
Оренбург
АН АДРЕСА
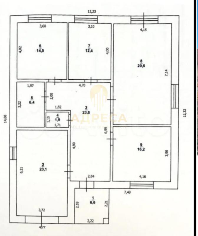
Продается кирпичный дом в развитом районе города на большом участке, где Вы можете построить все нужные Вам постройки и выдержать все необходимые расстояния!Площадь дома позволит разместиться ОЧЕНЬ большой семье без каких-либо проблем! Площадь в 167,4 кв. м. вмещает в себя 5 жилых комнат (3 с отделкой), большую кухню с погребом, ванную комнату, санузел, гараж на 2 авто с погребом и смотровой ямой и даже балкон!Материал стен: кирпич, все коммуникации подключены.Прекрасно развитая инфраструктура позволит получать все возможные блага, придуманные человеком на данный момент:кружки и секции для детей - Спорткомплекс Олимпийский, Центр Дзюдо, СК "Оренбург" рядом с Вами!покупки для дома и семьи - ТЦ Гулливер и все известные марки сетевых магазинов к Вашим услугам!нужен присмотр врачей - детская поликлиника №9, взрослая поликлиника №5, Железнодорожная больница (РЖД-Медицина), аптеки сохранят Ваше здоровье и время, так как добираться до них можно пешком и это займёт не более 5-10 минут!образование для детей - детские сады №157, №171 и № 169, школа №68 и гимназия №3, спортивные и культурно-развивающие дошкольные учреждения прекрасно с этим справятся!ждете пополнения? - коллектив перинатального центра ОКБ №2 готов Вам помочь в присмотре за правильным развитием малыша!следите за своим здоровьем? - пробежки по утрам по 5 стадионам, а также по зеленым паркам Вам гарантированно доступны!Рассмотрим все варианты, поможем с ипотекой, готовы к выходу на сделку в кратчайшие сроки!Звоните и мы с радостью покажем Вам квартиру в любое удобное время!
ID объекта в нашей базе: 730
Тип недвижимости
Адрес
Этажность
Площадь
Дом
Россия, Оренбургская обл, Оренбург, ул. Хабаровская,63
2
167.2
ID объявления
Обновлено
Создано
Действительно до
823143
2026-02-04 05:17:18
2026-02-04 05:17:18
2026-05-05 05:17:18

1 200 000 ₽
Комната
Россия, Оренбургская обл, Оренбург, ул. Элеваторная,9

2 850 000 ₽
1-комн. квартира
Россия, Оренбургская обл, Оренбург, ул. Юркина,2

1 130 000 ₽
Комната
Россия, Оренбургская обл, Оренбург, ул. Плеханова,17

3 500 000 ₽
Земельный участок
Россия, Оренбургская обл, Оренбург, пос Весенний, квартал им 70 лет Великой победы

1 550 000 ₽
Дом
Россия, Оренбургская обл, Оренбург, посёлок Подмаячный, улица Квартал № 20, 139

7 500 000 ₽
Дом
Россия, Оренбургская обл, Оренбург, Array

10 150 000 ₽
Дом
Россия, Оренбургская обл, Оренбург, п. Весенний, ул. Агатовая, д. 10

6 299 000 ₽
Дом
Россия, Оренбургская обл, Оренбург, р-н Сакмарский, СНТ "Сокол", ул. 4А, д.885

6 550 000 ₽
Дом
Россия, Оренбургская обл, Оренбург, ул. 3-я Линия,

15 000 000 ₽
Дом
Россия, Оренбургская обл, Оренбург, Земская 15

4 300 000 ₽
Дом
Россия, Оренбургская обл, Оренбург, СНТ Строитель, ул. Сиреневая

1 800 000 ₽
1-комн. квартира
Россия, Оренбургская обл, Оренбург, ул. Карагандинская,52
2 600 000 ₽
1-комн. квартира
г Оренбург, пр-кт Дзержинского, д 13, кв 1

1 650 000 ₽
Дом
Россия, Оренбургская обл, Оренбург, ул. Береговая 6-я,9

6 900 000 ₽
3-комн. квартира
Россия, Оренбургская обл, Оренбург, ул. Рокоссовского,3

4 800 000 ₽
3-комн. квартира
Россия, Оренбургская обл, Оренбург, ул. Космическая,7/1

5 950 000 ₽
Дом
Россия, Оренбургская обл, Оренбург, 12

635 000 ₽
Земельный участок
Россия, Оренбургская обл, Оренбург, 21б

7 100 000 ₽
Дом
Россия, Оренбургская обл, Оренбург, 40

1 100 000 ₽
2-комн. квартира
Россия, Оренбургская обл, Оренбург, ул. Геофизиков,3А

4 710 000 ₽
1-комн. квартира
Россия, Оренбургская обл, Оренбург, пер. Слесарный,7

5 300 000 ₽
2-комн. квартира
Россия, Оренбургская обл, Оренбург, пр-кт. Победы,155А

7 200 000 ₽
3-комн. квартира
Россия, Оренбургская обл, Оренбург, ул. Мира,3/1

850 000 ₽
Земельный участок
Россия, Оренбургская обл, Оренбург, Оренбургская область, г. Оренбург, С/Т Калина Красная, 380