АН АДРЕСА
Lilia.k-adresa@yandex.ru
Скажите продавцу, что вы нашли объявление на 156.ru
1
/
3
3 850 000 ₽
16
Оренбург
АН АДРЕСА
ПРЕДЛАГАЕМ ВАШЕМУ ВНИМАНИЮ ПРОСТОРНУЮ И УЮТНУЮ ДВУХКОМНАТНУЮ КВАРТИРУ!
КВАРТИРА С НОВЫМ ОТЛИЧНЫМ РЕМОНТОМ, ЧТО ПОЗВОЛЯЕТ ЗАЕХАТЬ и ЖИТЬ!
О КВАРТИРЕ:
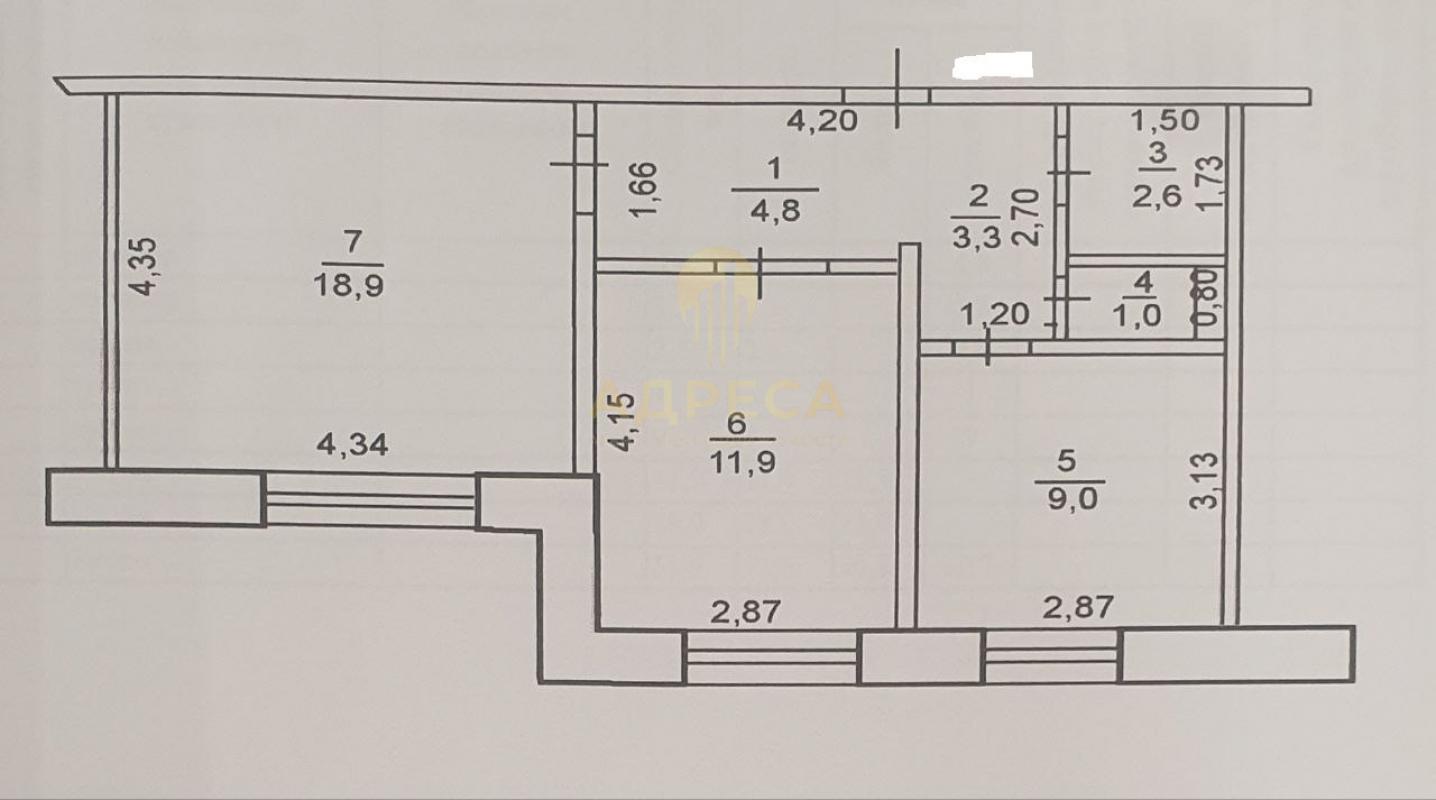
Общая площадь квартиры – 51.5 кв.м Очень хорошая планировка – квадратный просторный зал площадью 18.9 кв.м,, светлая спальня 11,9 кв.м., и уютная кухня 9 кв.м. В квартире выполнен качественный ремонт. Во всех комнатах пластиковые окна. С/У раздельный в кафеле. Качественные деревянные двери. Полы с подогревом! Из мебели остается вместительный угловой кухонный гарнитур. Сплит система. Коммуникации все центральные. Квартира очень теплая. Соседи очень хорошие и дружные.
ИНФРАСТРУКТУРА:
—д/с 106.
—СОШ №11
—Магазины Пятерочка, Магнит, Красное/белое, аптеки и др.;
Остановка общественного транспорта в шаговой доступности: маршруты: 78Н (62), 23.Рассмотрим все формы расчета: ипотека, сертификаты, наличный и безналичный расчет.
- Поможем купить в ипотеку! Узнавайте по телефону подробные условия.
Юридическое сопровождение сделки.
Если вам понравился этот вариант, но у вас ещё не продана своя недвижимость, предложите нам, возможно у нас прямо сейчас есть на неё покупатель.
ID объекта в нашей базе: 1394
Тип недвижимости
Адрес
Этажность
Этаж
Площадь
2-комн. квартира
Россия, Оренбургская обл, Оренбург, ул. Авиационная,20
5
1
51.5
ID объявления
Обновлено
Создано
Действительно до
818736
2026-01-27 05:28:28
2026-01-27 05:28:28
2026-04-27 05:28:28

1 100 000 ₽
2-комн. квартира
Россия, Оренбургская обл, Оренбург, ул. Геофизиков,3А

3 960 000 ₽
2-комн. квартира
Россия, Оренбургская обл, Оренбург, ул. Ялтинская,51/1

5 400 000 ₽
Дом
Россия, Оренбургская обл, Оренбург, СНТ Карачи, ул. Центральная линия, д. 43

7 300 000 ₽
3-комн. квартира
Россия, Оренбургская обл, Оренбург, ул. Мира,3/1

4 520 000 ₽
3-комн. квартира
Россия, Оренбургская обл, Оренбург, ул. Салмышская,3

8 500 000 ₽
Дом
Россия, Оренбургская обл, Оренбург, Рублева 43

7 799 000 ₽
2-комн. квартира
Россия, Оренбургская обл, Оренбург, ул. Салмышская,67

7 150 000 ₽
2-комн. квартира
Россия, Оренбургская обл, Оренбург, ул. Поляничко,7/1

договорная

6 200 000 ₽
Дом
Россия, Оренбургская обл, Оренбург, ул. Луговая

1 650 000 ₽
Земельный участок
Россия, Оренбургская обл, Оренбург, СНТ "Заря", ул.Яблоневая, 29

15 000 000 ₽
Дом
Россия, Оренбургская обл, Оренбург, Земская 15

5 950 000 ₽
Дом
Россия, Оренбургская обл, Оренбург, 12

4 500 000 ₽
1-комн. квартира
Россия, Оренбургская обл, Оренбург, ул. Уральская,2/8

4 650 000 ₽
1-комн. квартира
Россия, Оренбургская обл, Оренбург, пер. Слесарный,7

1 850 000 ₽
Дом
Россия, Оренбургская обл, Оренбург, ул. Фрунзе 40

4 610 000 ₽
1-комн. квартира
Россия, Оренбургская обл, Оренбург, пер. Слесарный,7

3 390 000 ₽
1-комн. квартира
Россия, Оренбургская обл, Оренбург, ул. Волгоградская,1/1

1 550 000 ₽
Дом
Россия, Оренбургская обл, Оренбург, посёлок Подмаячный, улица Квартал № 20, 139

7 200 000 ₽
2-комн. квартира
Россия, Оренбургская обл, Оренбург, пр-кт. Победы,149/1

7 799 000 ₽
5-комн. квартира
Россия, Оренбургская обл, Оренбург, мкр. 70 лет ВЛКСМ,3

950 000 ₽
Дом
Россия, Оренбургская обл, Оренбург, с.Беляевка

5 300 000 ₽
2-комн. квартира
Россия, Оренбургская обл, Оренбург, ул. Планерная,4

2 900 000 ₽
3-комн. квартира
Россия, Оренбургская обл, Оренбург, ул. Розы Люксембург,188