АН АДРЕСА
a.borisova-adresa@yandex.ru
Скажите продавцу, что вы нашли объявление на 156.ru
1
/
3
9 161 690 ₽
6
Оренбург
АН АДРЕСА
Документы готовы, быстрый выход на сделку!!!!ДоступностьСемейная ипотека 6 %, сельская ипотека 3 %
Наши дома подходят под субсидированные ипотечные программы, военной ипотекой, различными жилищными сертификатами и материнским капиталом. Все это делает покупку максимально удобной и комфортной для наших клиентов, а самое главное выгодной!
Материал стен: газоблоки
Терраса или веранда: покрыты керамогранитом
Лестница: металлический каркас
Санузел: на 1 и 2 этажах
Коммуникации: электричество, газ, отопление, канализация
Ремонт: улучшенная предчистовая отделка
Интернет и ТВ: Wi-Fi, телевидение
Парковка: парковочное место
Транспортная доступность: асфальтированная дорога, остановка общественного транспорта
Инфраструктура: магазин, аптека, детский сад, школа
Расстояние до центра города: 12 км
В подарок: территория участка огорожена забором, смонтированы въездные ворота под автомобиль и калитка с электромеханическим замком, уличное освещение, установлен почтовый ящик. Вокруг дома залита бетонная отмостка, бетонная дорожка и площадка под автомобиль, выполнено уличное освещение.
Внутренная отделка
стены оштукатурены по маякам, отшпатлеваны под обои
полы – утепленная армированная бетонная стяжка с последующим устройством наливного пола
установлена пластиковая подоконная доска, дверные и оконные откосы облагорожены
Качество
Наши дома построены из заводского газобетонного блока КОТТЕДЖ, а фасад облицован керамическим кирпичом. Установлены качественные ПВХ окна с двойным мультифункциональным стеклопакетом и надежная металлическая дверь с терморазрывом. В качестве кровельного покрытия выбрана двухслойная гибкая черепица Shinglas от компании ТЕХНОНИКОЛЬ, карниз подшит металлическими софитами, смонтирована водосточная система производства ТЕХНОНИКОЛЬ.
Инфраструктура
Поселок имеет развитую инфраструктуру, в шаговой доступности школа, детский сад, сетевые магазины, аптеки и ФАП. Поселок имеет хорошую транспортную доступность, ходит общественный транспорт. Сельская прописка и тарифы гарантируют вам экономию бюджета на обслуживание дома.
ОТ НАС: помощь в одобрении ипотеки ,полное юридическое сопровождение, помощь в продаже вашей недвижимости, работа с сертификатами.ПРОСМОТР В УДОБНОЕ ДЛЯ ВАС ВРЕМЯ, ПО ПРЕДВАРИТЕЛЬНОЙ ДОГОВОРЕННОСТИ!
ID объекта в нашей базе: 1537
Адрес
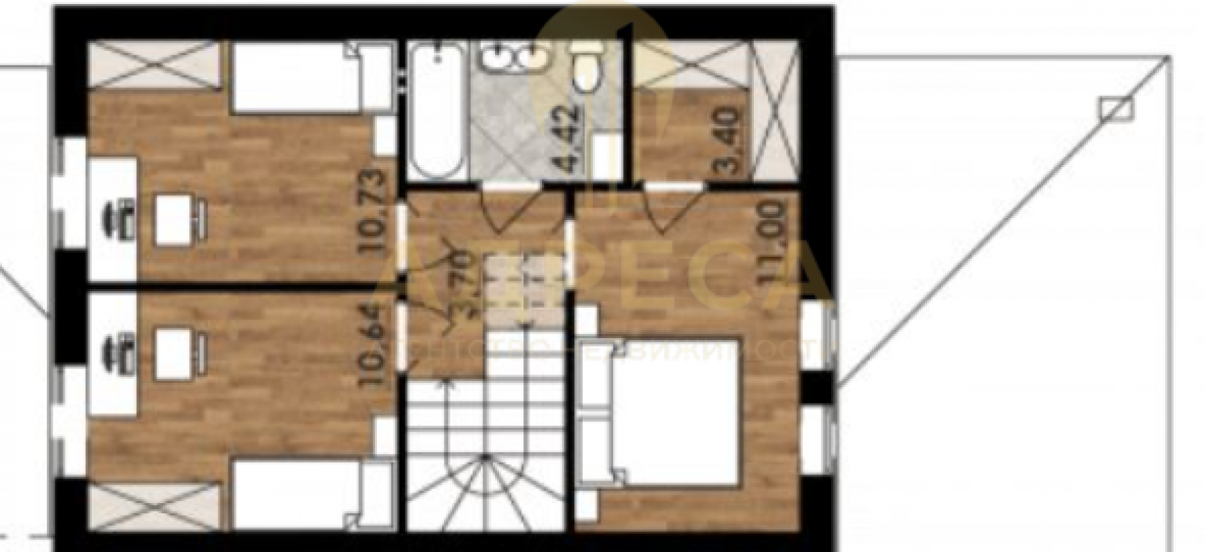
Этажность
Площадь
Россия, Оренбургская обл, Оренбург, 41 а
2
102
ID объявления
Обновлено
Создано
Действительно до
818206
2026-01-26 05:35:15
2026-01-26 05:35:15
2026-04-26 05:35:15

4 699 000 ₽
1-комн. квартира
Россия, Оренбургская обл, Оренбург, ул. Поляничко,12/1

635 000 ₽
Земельный участок
Россия, Оренбургская обл, Оренбург, 21б

7 500 000 ₽
Дом
Россия, Оренбургская обл, Оренбург, ул. Ломоносова

4 650 000 ₽
1-комн. квартира
Россия, Оренбургская обл, Оренбург, пер. Слесарный

3 600 000 ₽
1-комн. квартира
Россия, Оренбургская обл, Оренбург, ул. Фронтовиков,8/2

3 200 000 ₽
2-комн. квартира
г Оренбург, пер Киселева, д 36

4 650 000 ₽
1-комн. квартира
Россия, Оренбургская обл, Оренбург, ул. Пролетарская,288/3
8 500 000 ₽
Земельный участок
Россия, Оренбургская обл, Оренбург, ул. Весенняя,3

2 850 000 ₽
1-комн. квартира
Россия, Оренбургская обл, Оренбург, ул. Юркина,2

5 300 000 ₽
1-комн. квартира
Россия, Оренбургская обл, Оренбург, пр-кт. Победы,155А

7 480 000 ₽
2-комн. квартира
Россия, Оренбургская обл, Оренбург, ул. Березка,21

1 850 000 ₽
Дом
Россия, Оренбургская обл, Оренбург, ул. Фрунзе 40

250 000 ₽
Дом
Россия, Оренбургская обл, Оренбург, ул. 13 Линия,105

6 500 000 ₽
Россия, Оренбургская обл, Оренбург, Российская Федерация, Оренбургская область, муниципальный район Оренбургский, сельское поселение Подгородне-Покровский сельсовет, село Подгородняя Покровка, улица Переволоцкая, земельный участок 21/4

8 250 000 ₽
Дом
Россия, Оренбургская обл, Оренбург, СНТ Авиато- 3, ул. Десантная 43

8 999 000 ₽
Дом
Россия, Оренбургская обл, Оренбург, Рублева 46

7 021 920 ₽
Россия, Оренбургская обл, Оренбург, ул. Есенина,44 а

1 650 000 ₽
Дом
Россия, Оренбургская обл, Оренбург, ул. Береговая 6-я,9

5 600 000 ₽
2-комн. квартира
Россия, Оренбургская обл, Оренбург, ул. Ямашева,6

4 610 000 ₽
1-комн. квартира
Россия, Оренбургская обл, Оренбург, пер. Слесарный,7

5 150 000 ₽
Дом
Россия, Оренбургская обл, Оренбург, ул. Степана Разина,65
2 600 000 ₽
1-комн. квартира
г Оренбург, пр-кт Дзержинского, д 13, кв 1

6 200 000 ₽
Дом
Россия, Оренбургская обл, Оренбург, ул. Луговая

4 610 000 ₽
1-комн. квартира
Россия, Оренбургская обл, Оренбург, пер. Слесарный