АН АДРЕСА
a.borisova-adresa@yandex.ru
Скажите продавцу, что вы нашли объявление на 156.ru
1
/
3
9 161 690 ₽
11
Оренбург
АН АДРЕСА
Документы готовы, быстрый выход на сделку!!!!ДоступностьСемейная ипотека 6 %, сельская ипотека 3 %
Наши дома подходят под субсидированные ипотечные программы, военной ипотекой, различными жилищными сертификатами и материнским капиталом. Все это делает покупку максимально удобной и комфортной для наших клиентов, а самое главное выгодной!
Материал стен: газоблоки
Терраса или веранда: покрыты керамогранитом
Лестница: металлический каркас
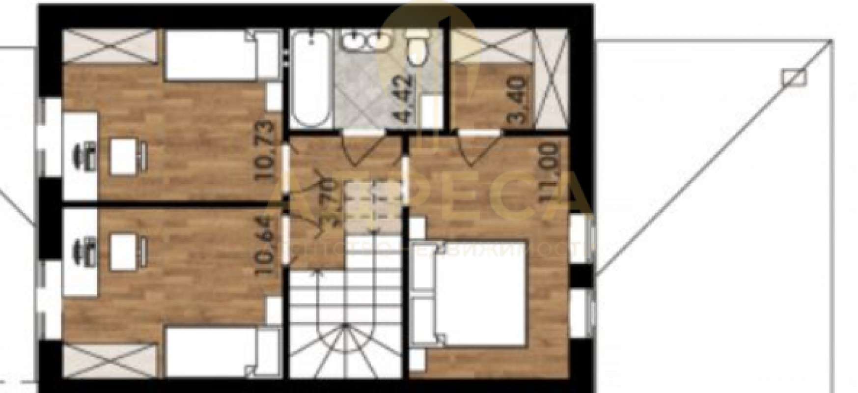
Санузел: на 1 и 2 этажах
Коммуникации: электричество, газ, отопление, канализация
Ремонт: улучшенная предчистовая отделка
Интернет и ТВ: Wi-Fi, телевидение
Парковка: парковочное место
Транспортная доступность: асфальтированная дорога, остановка общественного транспорта
Инфраструктура: магазин, аптека, детский сад, школа
Расстояние до центра города: 12 км
В подарок: территория участка огорожена забором, смонтированы въездные ворота под автомобиль и калитка с электромеханическим замком, уличное освещение, установлен почтовый ящик. Вокруг дома залита бетонная отмостка, бетонная дорожка и площадка под автомобиль, выполнено уличное освещение.
Внутренная отделка
стены оштукатурены по маякам, отшпатлеваны под обои
полы – утепленная армированная бетонная стяжка с последующим устройством наливного пола
установлена пластиковая подоконная доска, дверные и оконные откосы облагорожены
Качество
Наши дома построены из заводского газобетонного блока КОТТЕДЖ, а фасад облицован керамическим кирпичом. Установлены качественные ПВХ окна с двойным мультифункциональным стеклопакетом и надежная металлическая дверь с терморазрывом. В качестве кровельного покрытия выбрана двухслойная гибкая черепица Shinglas от компании ТЕХНОНИКОЛЬ, карниз подшит металлическими софитами, смонтирована водосточная система производства ТЕХНОНИКОЛЬ.
Инфраструктура
Поселок имеет развитую инфраструктуру, в шаговой доступности школа, детский сад, сетевые магазины, аптеки и ФАП. Поселок имеет хорошую транспортную доступность, ходит общественный транспорт. Сельская прописка и тарифы гарантируют вам экономию бюджета на обслуживание дома.
ОТ НАС: помощь в одобрении ипотеки ,полное юридическое сопровождение, помощь в продаже вашей недвижимости, работа с сертификатами.ПРОСМОТР В УДОБНОЕ ДЛЯ ВАС ВРЕМЯ, ПО ПРЕДВАРИТЕЛЬНОЙ ДОГОВОРЕННОСТИ!
ID объекта в нашей базе: 1537
Адрес
Этажность
Площадь
Россия, Оренбургская обл, Оренбург, 41 а
2
102
ID объявления
Обновлено
Создано
Действительно до
816393
2026-01-23 05:43:52
2026-01-23 05:43:52
2026-04-23 05:43:52

4 500 000 ₽
1-комн. квартира
Россия, Оренбургская обл, Оренбург, ул. Уральская,2/8

5 700 000 ₽
Дом
Россия, Оренбургская обл, Оренбург, ул. Заречная

7 500 000 ₽
Помещение
Россия, Оренбургская обл, Оренбург, Тамарова 1/2

4 299 000 ₽
Дом
Россия, Оренбургская обл, Оренбург, г.Оренбург, СНТ "Бургаз", дом 225

3 150 000 ₽
3-комн. квартира
Россия, Оренбургская обл, Оренбург, ул. Восстания,77

6 500 000 ₽
Россия, Оренбургская обл, Оренбург, Российская Федерация, Оренбургская область, муниципальный район Оренбургский, сельское поселение Подгородне-Покровский сельсовет, село Подгородняя Покровка, улица Переволоцкая, земельный участок 21/4

4 299 000 ₽
Дом
Россия, Оренбургская обл, Оренбург, Оренбургский р-н, г.Оренбург, ул.Измайловская

4 650 000 ₽
1-комн. квартира
Россия, Оренбургская обл, Оренбург, пер. Слесарный,7

1 699 000 ₽
1-комн. квартира
Россия, Оренбургская обл, Оренбург, ул. 1 Мая,148

4 300 000 ₽
Дом
Россия, Оренбургская обл, Оренбург, Оренбургский р-н, Экспериментальный сельсовет, Коттеджный поселок в СНТ Южное, ул. Липовая

5 600 000 ₽
2-комн. квартира
Россия, Оренбургская обл, Оренбург, ул. Ямашева,6

4 610 000 ₽
2-комн. квартира
Россия, Оренбургская обл, Оренбург, пер. Неплюева,2

7 500 000 ₽
Дом
Россия, Оренбургская обл, Оренбург, Оренбургская обл., г.Оренбург, мкр. поселок Кушкуль, ул.Цветочная , дом 11А

9 900 000 ₽
Дом
Россия, Оренбургская обл, Оренбург, Дамбовая, 9

6 799 000 ₽
Дом
Россия, Оренбургская обл, Оренбург, ул. Северная

2 850 000 ₽
1-комн. квартира
Россия, Оренбургская обл, Оренбург, ул. Юркина,2

4 399 000 ₽
Россия, Оренбургская обл, Оренбург, г.Оренбург, мк-р Солнечный, ул.Ивановская, 3А

1 500 000 ₽
Дом
Россия, Оренбургская обл, Оренбург, Оренбургская обл., г. Оренбург, г. Оренбург СНТ "Гидропресс-Госматрезервы-станция" 1-сиреневая 46

990 000 ₽
Дача
Россия, Оренбургская обл, Оренбург, СНТ Искра (около д. Аввакумово), 8, Калининский муниципальный округ, Тверская область

8 999 000 ₽
Дом
Россия, Оренбургская обл, Оренбург, Рублева 46

2 900 000 ₽
3-комн. квартира
Россия, Оренбургская обл, Оренбург, ул. Розы Люксембург,188

4 999 000 ₽
Дом
Россия, Оренбургская обл, Оренбург, г. Оренбург, п.Заречный, ул.Ярославская, 4/1

6 000 000 ₽
Земельный участок
Россия, Оренбургская обл, Оренбург, с/т "Солнечный", Линия 9, участок №6

9 990 000 ₽
Дом
Россия, Оренбургская обл, Оренбург, 58