АН АДРЕСА
Lilia.k-adresa@yandex.ru
Скажите продавцу, что вы нашли объявление на 156.ru
1
/
3
12 900 000 ₽
14
Южный Урал
АН АДРЕСА
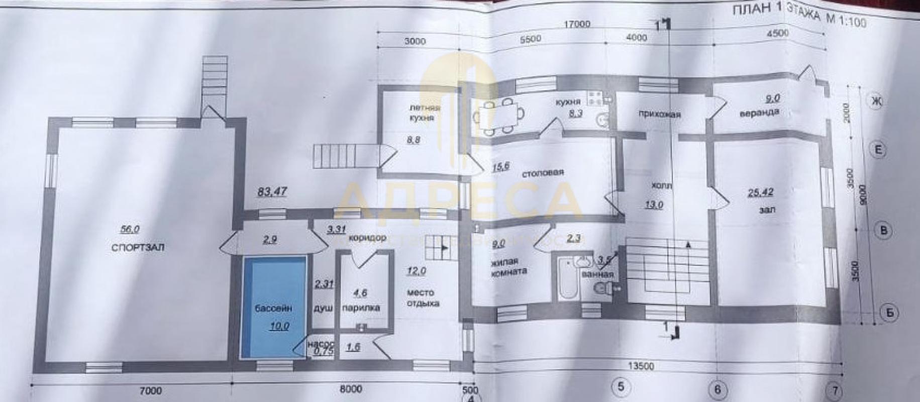
▎Ваш идеальный дом в поселке "Южный Урал"! Мечтаете о тихой и спокойной жизни за городом, но с городским комфортом? Этот просторный двухэтажный дом в поселке "Южный Урал" – идеальный вариант для вас!
▎Описание дома:
Двухэтажный дом с полуподвальным помещением:
Первый этаж:
Гостиная: Просторная и уютная, идеально подходит для теплых семейных вечеров.
Кухня-столовая: Удобное место с большим столом для праздничных обедов и душевных посиделок.
Дополнительная комната или гардеробная: Возможность адаптации под ваши нужды.
Санузел: Удобное размещение на первом и втором этажах.
Коридор: Простой и просторный, создающий атмосферу уюта.
Полуподвальное помещение: Две комнаты для развлечений, кладовая и котельная с выходом в банный комплекс – все для комфортного проживания вашей семьи.
Внутренний двор: Удобный выход из кухни, гостиной и банного комплекса для приятных прогулок и семейных посиделок в уютной беседке.
Второй этаж: Четыре комнаты:
– Детские комнаты: Созданы для счастливого детства ваших детей.
– Взрослая спальня: Место для спокойного и комфортного отдыха.
Банный комплекс: Состоит из комнаты отдыха, парной на дровах, душевой и большого бассейна.
Отдельно стоящий гараж:
На 2 автомобиля, с установленными рольставнями для защиты от непогоды.
Дополнительные преимущества:
Теплый пол по всему периметру первого этажа.
Готовность к проживанию: Дом укомплектован всей необходимой мебелью, техникой и четырьмя сплит-системами.
• Автономная канализация переливного типа: Три септика, позволяющие забыть о проблемах с отводом сточных вод.
Земельный участок: 12.5 соток, предоставляющий простор для реализации ваших идей, включая уютный сад с различными насаждениями.
Удобное расположение: Поселок "Южный Урал" находится всего в 10 км от центра города, обеспечивая легкий доступ ко всей городской инфраструктуре.
Этот шикарный дом — ваш шанс на жизнь в гармонии с природой, не отказываясь от удобств городской жизни. Не упустите возможность стать его владельцем!
ID объекта в нашей базе: 1811
Тип недвижимости
Адрес
Этажность
Площадь
Дом
Россия, Оренбургская обл, Южный Урал, ул. Пушкина, 9
2
235
ID объявления
Обновлено
Создано
Действительно до
815912
2026-01-22 06:03:38
2026-01-22 06:03:38
2026-04-22 06:03:38

2 390 000 ₽
1-комн. квартира
Россия, Оренбургская обл, Оренбург, ул. Конституции СССР,24/1 к 1

10 499 000 ₽
Дом
Россия, Оренбургская обл, Оренбург, Оренбургский р-н, с.Подгородняя Покровка, пер.Лунный

4 999 000 ₽
Дом
Россия, Оренбургская обл, Оренбург, г. Оренбург, п.Заречный, ул.Ярославская, 4/1

5 899 000 ₽
Дом
Россия, Оренбургская обл, Оренбург, Оренбургский р-н, с.Нежинка, ул.Молодежная

1 200 000 ₽
Комната
Россия, Оренбургская обл, Оренбург, ул. Элеваторная,9

13 860 000 ₽
3-комн. квартира
Россия, Оренбургская обл, Оренбург, ул. Цвиллинга,68

4 300 000 ₽
Дом
Россия, Оренбургская обл, Оренбург, СНТ «Южное»

6 500 000 ₽
Дом
Россия, Оренбургская обл, Оренбург, Array

6 000 000 ₽
3-комн. квартира
Россия, Оренбургская обл, Оренбург, ул. Юркина,2

4 390 000 ₽
Дом
Россия, Оренбургская обл, Оренбург, мкр. Солнечный, ул. Ивановская, 3А

6 200 000 ₽
Дом
Россия, Оренбургская обл, Оренбург, ул. Луговая

4 399 000 ₽
Россия, Оренбургская обл, Оренбург, г.Оренбург, мк-р Солнечный, ул.Ивановская, 3А

4 650 000 ₽
1-комн. квартира
Россия, Оренбургская обл, Оренбург, пер. Слесарный

5 899 000 ₽
Дом
Россия, Оренбургская обл, Оренбург, мкр-н Заречный, ул.Ярославская

9 990 000 ₽
Дом
Россия, Оренбургская обл, Оренбург, 58

5 499 000 ₽
Дом
Россия, Оренбургская обл, Оренбург, с. Нежинка, СНТ "Маяк", 13 линия

5 700 000 ₽
Дом
Россия, Оренбургская обл, Оренбург, ул. Заречная

7 699 000 ₽
2-комн. квартира
Россия, Оренбургская обл, Оренбург, ул. Салмышская,34к6

4 650 000 ₽
1-комн. квартира
Россия, Оренбургская обл, Оренбург, пер. Слесарный,7

5 550 000 ₽
Дом
Россия, Оренбургская обл, Оренбург, Подгородняя Покровка, ул. Яблоневая, д 300

7 500 000 ₽
Дом
Россия, Оренбургская обл, Оренбург, ул. Ломоносова

1 500 000 ₽
Дом
Россия, Оренбургская обл, Оренбург, Оренбургская обл., г. Оренбург, г. Оренбург СНТ "Гидропресс-Госматрезервы-станция" 1-сиреневая 46

4 590 000 ₽
3-комн. квартира
Россия, Оренбургская обл, Оренбург, ул. Дружбы,3/4

4 299 000 ₽
Дом
Россия, Оренбургская обл, Оренбург, ул. Оренбургская