АН АДРЕСА
Lilia.k-adresa@yandex.ru
Скажите продавцу, что вы нашли объявление на 156.ru
1
/
3
3 850 000 ₽
12
Оренбург
АН АДРЕСА
ПРЕДЛАГАЕМ ВАШЕМУ ВНИМАНИЮ ПРОСТОРНУЮ И УЮТНУЮ ДВУХКОМНАТНУЮ КВАРТИРУ!
КВАРТИРА С НОВЫМ ОТЛИЧНЫМ РЕМОНТОМ, ЧТО ПОЗВОЛЯЕТ ЗАЕХАТЬ и ЖИТЬ!
О КВАРТИРЕ:
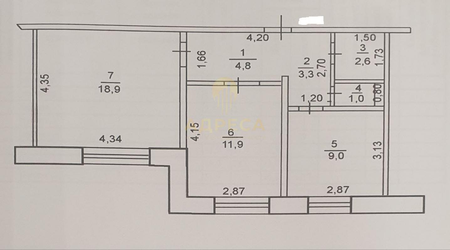
Общая площадь квартиры – 51.5 кв.м Очень хорошая планировка – квадратный просторный зал площадью 18.9 кв.м,, светлая спальня 11,9 кв.м., и уютная кухня 9 кв.м. В квартире выполнен качественный ремонт. Во всех комнатах пластиковые окна. С/У раздельный в кафеле. Качественные деревянные двери. Полы с подогревом! Из мебели остается вместительный угловой кухонный гарнитур. Сплит система. Коммуникации все центральные. Квартира очень теплая. Соседи очень хорошие и дружные.
ИНФРАСТРУКТУРА:
—д/с 106.
—СОШ №11
—Магазины Пятерочка, Магнит, Красное/белое, аптеки и др.;
Остановка общественного транспорта в шаговой доступности: маршруты: 78Н (62), 23.Рассмотрим все формы расчета: ипотека, сертификаты, наличный и безналичный расчет.
- Поможем купить в ипотеку! Узнавайте по телефону подробные условия.
Юридическое сопровождение сделки.
Если вам понравился этот вариант, но у вас ещё не продана своя недвижимость, предложите нам, возможно у нас прямо сейчас есть на неё покупатель.
ID объекта в нашей базе: 1394
Тип недвижимости
Адрес
Этажность
Этаж
Площадь
2-комн. квартира
Россия, Оренбургская обл, Оренбург, ул. Авиационная,20
5
1
51.5
ID объявления
Обновлено
Создано
Действительно до
813950
2026-01-19 05:32:57
2026-01-19 05:32:57
2026-04-19 05:32:57

3 699 000 ₽
Дом
Россия, Оренбургская обл, Оренбург, Оренбургская обл., г.Оренбург, мкр. поселок Кушкуль, ул.Цветочная , дом 11А

4 300 000 ₽
Дом
Россия, Оренбургская обл, Оренбург, Оренбургский р-н, Экспериментальный сельсовет, Коттеджный поселок в СНТ Южное, ул. Липовая

7 870 000 ₽
Дом
Россия, Оренбургская обл, Оренбург, Земская 19

6 000 000 ₽
Земельный участок
Россия, Оренбургская обл, Оренбург, с/т "Солнечный", Линия 9, участок №6

4 300 000 ₽
Дом
Россия, Оренбургская обл, Оренбург, СНТ «Южное»

3 900 000 ₽
2-комн. квартира
Россия, Оренбургская обл, Оренбург, пр-кт. Братьев Коростелевых,68/1

4 610 000 ₽
1-комн. квартира
Россия, Оренбургская обл, Оренбург, пер. Слесарный

2 550 000 ₽
Дом
Россия, Оренбургская обл, Оренбург, ул. 2 Маячный Спуск,14

3 560 000 ₽
1-комн. квартира
Россия, Оренбургская обл, Оренбург, ул. Беляевская,15

5 950 000 ₽
Дом
Россия, Оренбургская обл, Оренбург, 12

7 200 000 ₽
2-комн. квартира
Россия, Оренбургская обл, Оренбург, пр-кт. Победы,149/1

5 199 000 ₽
Дом
Россия, Оренбургская обл, Оренбург, Экспериментальный сельсовет, СНТ "Южное", ул. Ясеневая

5 899 000 ₽
Дом
Россия, Оренбургская обл, Оренбург, мкр-н Заречный, ул.Ярославская

4 299 000 ₽
Дом
Россия, Оренбургская обл, Оренбург, Оренбургский р-н, г.Оренбург, ул.Измайловская

8 999 000 ₽
Дом
Россия, Оренбургская обл, Оренбург, Рублева 46

4 300 000 ₽
Дом
Россия, Оренбургская обл, Оренбург, СНТ Строитель, ул. Сиреневая

990 000 ₽
Дом
Россия, Оренбургская обл, Оренбург, Переволоцкий р-н, с.Родничный Дол, ул.Центральная

7 799 000 ₽
5-комн. квартира
Россия, Оренбургская обл, Оренбург, мкр. 70 лет ВЛКСМ,3

3 800 000 ₽
Дом
Россия, Оренбургская обл, Оренбург, г.Оренбург, СНТ "Бургаз", дом 225

5 850 000 ₽
3-комн. квартира
Россия, Оренбургская обл, Оренбург, ул. Дружбы,11/2

5 899 000 ₽
Дом
Россия, Оренбургская обл, Оренбург, Оренбургский р-н, с.Нежинка, ул.Молодежная

3 300 000 ₽
3-комн. квартира
Россия, Оренбургская обл, Оренбург, ул. Котова,95

10 499 000 ₽
Дом
Россия, Оренбургская обл, Оренбург, Оренбургский р-н, с.Подгородняя Покровка, пер.Лунный

4 299 000 ₽
Дом
Россия, Оренбургская обл, Оренбург, ул. Оренбургская