АН АДРЕСА
Lilia.k-adresa@yandex.ru
Скажите продавцу, что вы нашли объявление на 156.ru
1
/
3
3 850 000 ₽
21
Оренбург
АН АДРЕСА
ПРЕДЛАГАЕМ ВАШЕМУ ВНИМАНИЮ ПРОСТОРНУЮ И УЮТНУЮ ДВУХКОМНАТНУЮ КВАРТИРУ!
КВАРТИРА С НОВЫМ ОТЛИЧНЫМ РЕМОНТОМ, ЧТО ПОЗВОЛЯЕТ ЗАЕХАТЬ и ЖИТЬ!
О КВАРТИРЕ:
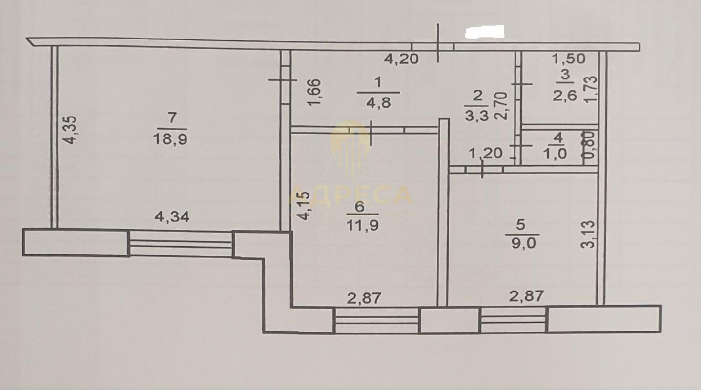
Общая площадь квартиры – 51.5 кв.м Очень хорошая планировка – квадратный просторный зал площадью 18.9 кв.м,, светлая спальня 11,9 кв.м., и уютная кухня 9 кв.м. В квартире выполнен качественный ремонт. Во всех комнатах пластиковые окна. С/У раздельный в кафеле. Качественные деревянные двери. Полы с подогревом! Из мебели остается вместительный угловой кухонный гарнитур. Сплит система. Коммуникации все центральные. Квартира очень теплая. Соседи очень хорошие и дружные.
ИНФРАСТРУКТУРА:
—д/с 106.
—СОШ №11
—Магазины Пятерочка, Магнит, Красное/белое, аптеки и др.;
Остановка общественного транспорта в шаговой доступности: маршруты: 78Н (62), 23.Рассмотрим все формы расчета: ипотека, сертификаты, наличный и безналичный расчет.
- Поможем купить в ипотеку! Узнавайте по телефону подробные условия.
Юридическое сопровождение сделки.
Если вам понравился этот вариант, но у вас ещё не продана своя недвижимость, предложите нам, возможно у нас прямо сейчас есть на неё покупатель.
ID объекта в нашей базе: 1394
Тип недвижимости
Адрес
Этажность
Этаж
Площадь
2-комн. квартира
Россия, Оренбургская обл, Оренбург, ул. Авиационная,20
5
1
51.5
ID объявления
Обновлено
Создано
Действительно до
810134
2026-01-13 05:32:53
2026-01-13 05:32:53
2026-04-13 05:32:53

1 850 000 ₽
Дом
Россия, Оренбургская обл, Оренбург, ул. Фрунзе 40

3 990 000 ₽
3-комн. квартира
Россия, Оренбургская обл, Оренбург, ул. Авиационная,20

4 590 000 ₽
3-комн. квартира
Россия, Оренбургская обл, Оренбург, ул. Дружбы,3/4

4 699 000 ₽
1-комн. квартира
Россия, Оренбургская обл, Оренбург, ул. Поляничко,12/1

5 200 000 ₽
Дом
Россия, Оренбургская обл, Оренбург, г.Оренбург, СНТ Авиатор-2, ул. 1-я Линия, уч.430

19 500 000 ₽
Дом
Россия, Оренбургская обл, Оренбург, ул. Бугурусланская,60

8 300 000 ₽
Дом
Россия, Оренбургская обл, Оренбург, 21

1 650 000 ₽
Земельный участок
Россия, Оренбургская обл, Оренбург, СНТ "Заря", ул.Яблоневая, 29

6 200 000 ₽
2-комн. квартира
Россия, Оренбургская обл, Оренбург, ул. Братьев Хусаиновых,8

1 020 000 ₽
1-комн. квартира
Россия, Оренбургская обл, Оренбург, ул. Братская,7

6 000 000 ₽
3-комн. квартира
Россия, Оренбургская обл, Оренбург, ул. Юркина,2

3 699 000 ₽
3-комн. квартира
Россия, Оренбургская обл, Оренбург, ул. Восточная,84

3 600 000 ₽
1-комн. квартира
Россия, Оренбургская обл, Оренбург, ул. Фронтовиков,8/2

3 699 000 ₽
Дом
Россия, Оренбургская обл, Оренбург, Оренбургская обл., г.Оренбург, мкр. поселок Кушкуль, ул.Цветочная , дом 11А

4 580 000 ₽
1-комн. квартира
Россия, Оренбургская обл, Оренбург, пер.Слесарный 7

1 350 000 ₽
Дом
Россия, Оренбургская обл, Оренбург, 197

6 300 000 ₽
1-комн. квартира
Россия, Оренбургская обл, Оренбург, Чкалова 51/1

3 248 000 ₽
2-комн. квартира
Россия, Оренбургская обл, Оренбург, ул. Березка,2

836 000 ₽
Комната
Россия, Оренбургская обл, Оренбург, проезд. Промысловый,21

2 300 000 ₽
Гараж
Россия, Оренбургская обл, Оренбург, ул. Просторная,8

4 610 000 ₽
1-комн. квартира
Россия, Оренбургская обл, Оренбург, пер. Слесарный

6 990 000 ₽
2-комн. квартира
Россия, Оренбургская обл, Оренбург, ул. Поляничко,12

4 650 000 ₽
1-комн. квартира
Россия, Оренбургская обл, Оренбург, пер. Слесарный,7

3 650 000 ₽
1-комн. квартира
Россия, Оренбургская обл, Оренбург, ул. Салмышская,64/2