АН АДРЕСА
inozemceva-adresa@yandex.ru
Скажите продавцу, что вы нашли объявление на 156.ru
1
/
3
4 399 000 ₽
14
Оренбург
АН АДРЕСА
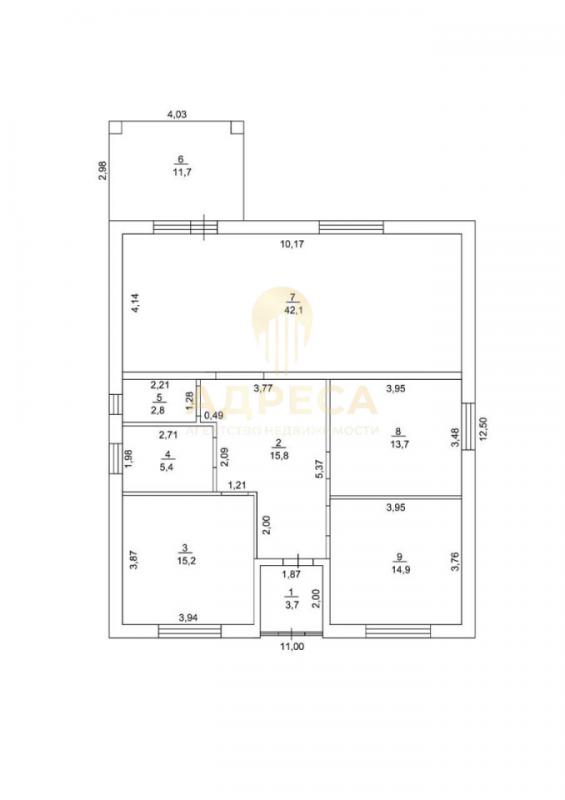
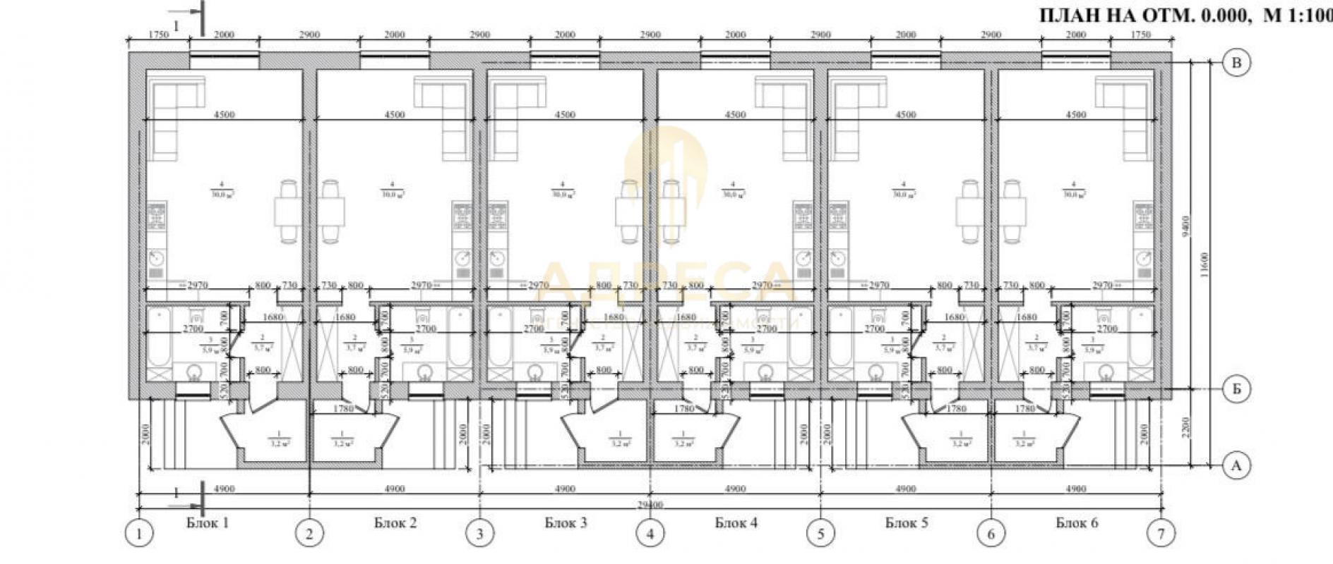
Пpедлaгаем НОBЫЙ ТАУНХАУС ОТ ЗАСТРОЙЩИКА 🏡 в п.Солнечный.С РЕМОНТОМ !!! 📍2 км., 5 минут до городa Дом 50 м.кв, 2,2 сотки земли.Современная планировка - большая просторная кухня-гостиная 31 м.кв., холл 5 м.кв., СУС 6 м.кв.📍В доме сделан качественный ремонт:Стены отштукатурены, отшпаклеваны, оклеены обоями.По всему тауну натяжной матовый потолок с точечными светильниками и выводом на центральную люстру.Пластиковые окна, двойной стеклопакет.По всему дому теплые водяные полы, установлены радиаторы, гребенка с возможностью регулировать температуру.В кухне-гостиной выложен ламинат, в санузле и холле кафель.В санузле установлена ванна, раковина, унитаз.Входная дверь двухконтурная, с терморазрывом. Фундамент: глубокий 2 метра свайно-заливной.Стены: газоблок, облицовочный керамический кирпич.Крыша: утеплитель 20 см, гидро-паро-изоляция, покрытие металлопрофиль. Фронты зашиты металло-профилем.Отмостка по всему периметру дома.Коммуникации: Электричество центральное, электропроводка разведена по всему дому, кабель ГОСТ, оплата по счетчикам.Вода центральная.Отопление автономное, установлен двухконтурный газовый котёл.Канализация центральная.Участок ровный, правильной формы. Широкие подъездные пути.Расположение и инфраструктура:📍 Остановка общественного транспорта в 3 мин. ходьбы. - маршрут №57н (22)📍 Детский сад №195, №200, №66, №125, Школа №3, Лицей №7, МОЛЛ Армада 2, Городская клиническая больница №1.Не упустите шанс стать счастливым обладателем этого таунхауса.Свяжитесь с нами сейчас, чтобы узнать больше и сделать свою мечту реальностью!Дом и земля в собственности. Документы проверены! Один собственник! Быстрый выход на сделку! Форму оплаты обсуждаю по телефону._________________________________________________________________________При покупке данного объекта для Вас бесплатные юридические услуги по сопровождению сделки. Предоставление консультации по вопросам, связанным с покупкой и продажей недвижимости, в том числе с использованием кредитных средств, всех видов сертификатов. Поможем собрать все необходимые документы для подготовки к сделки.Агентство недвижимости "АДРЕСА "Адрес: г.Оренбург, ул.Восточная 42/3
ID объекта в нашей базе: 1155
Адрес
Этажность
Площадь
Россия, Оренбургская обл, Оренбург, г.Оренбург, мк-р Солнечный, ул.Ивановская, 3А
1
50
ID объявления
Обновлено
Создано
Действительно до
810068
2026-01-13 05:23:57
2026-01-13 05:23:57
2026-04-13 05:23:57

1 750 000 ₽
1-комн. квартира
Россия, Оренбургская обл, Оренбург, ул. Карагандинская,52

7 999 000 ₽
Дом
Россия, Оренбургская обл, Оренбург, Рублева 43

5 450 000 ₽
Дом
Россия, Оренбургская обл, Оренбург, с.Пруды ул.Центральная 25А

6 950 000 ₽
2-комн. квартира
Россия, Оренбургская обл, Оренбург, ул. Березка,19/2

4 699 000 ₽
1-комн. квартира
Россия, Оренбургская обл, Оренбург, ул. Поляничко,12/1

900 000 ₽
1-комн. квартира
Россия, Оренбургская обл, Оренбург, ул. Братская,7

6 999 000 ₽
Дом
Россия, Оренбургская обл, Оренбург, переулок Аптекарьский

6 500 000 ₽
Россия, Оренбургская обл, Оренбург, Российская Федерация, Оренбургская область, муниципальный район Оренбургский, сельское поселение Подгородне-Покровский сельсовет, село Подгородняя Покровка, улица Переволоцкая, земельный участок 21/4

1 100 000 ₽
2-комн. квартира
Россия, Оренбургская обл, Оренбург, ул. Геофизиков,3А

8 680 000 ₽
Дом
Россия, Оренбургская обл, Оренбург, ул. Кишиневская, null

2 300 000 ₽
Гараж
Россия, Оренбургская обл, Оренбург, ул. Просторная,8

3 248 000 ₽
2-комн. квартира
Россия, Оренбургская обл, Оренбург, ул. Березка,2

1 650 000 ₽
1-комн. квартира
Россия, Оренбургская обл, Оренбург, пр-кт. Дзержинского,36/2

3 390 000 ₽
1-комн. квартира
Россия, Оренбургская обл, Оренбург, ул. Волгоградская,1/1

3 300 000 ₽
3-комн. квартира
Россия, Оренбургская обл, Оренбург, ул. Котова,95

3 990 000 ₽
3-комн. квартира
Россия, Оренбургская обл, Оренбург, ул. Авиационная,20

2 800 000 ₽
Дом
Россия, Оренбургская обл, Оренбург, ул. Чехова,38

1 500 000 ₽
Дом
Россия, Оренбургская обл, Оренбург, Оренбургская обл., г. Оренбург, г. Оренбург СНТ "Гидропресс-Госматрезервы-станция" 1-сиреневая 46

4 590 000 ₽
3-комн. квартира
Россия, Оренбургская обл, Оренбург, ул. Дружбы,3/4

4 300 000 ₽
Дом
Россия, Оренбургская обл, Оренбург, СНТ Строитель, ул. Сиреневая

5 950 000 ₽
Дом
Россия, Оренбургская обл, Оренбург, 12

1 450 000 ₽
Дом
Россия, Оренбургская обл, Оренбург, 197

6 299 000 ₽
Дом
Россия, Оренбургская обл, Оренбург, р-н Сакмарский, СНТ "Сокол", ул. 4А, д.885

12 000 000 ₽
3-комн. квартира
Россия, Оренбургская обл, Оренбург, ул. Цвиллинга,68