АН АДРЕСА
anufriev-adresa@yandex.ru
Скажите продавцу, что вы нашли объявление на 156.ru
1
/
3
7 870 000 ₽
13
Оренбург
АН АДРЕСА
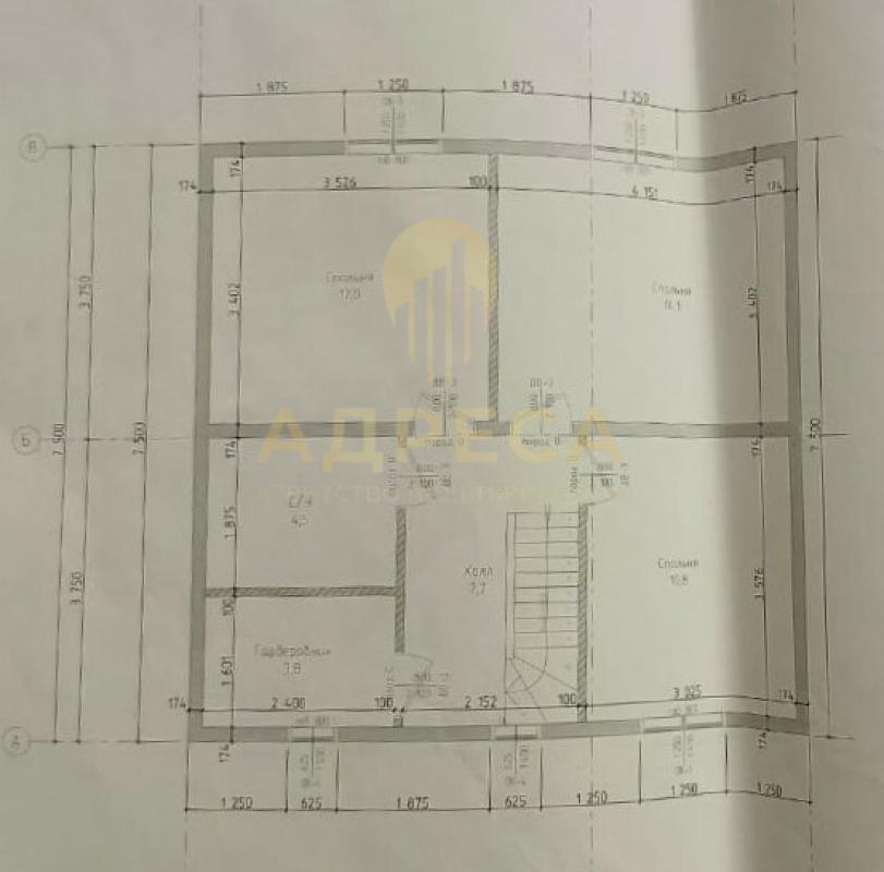
Продается дом в ЭЛИТНОЙ части поселка Кушкуль, по адресу: улица Земская 19.Площадь дома 104 м.кв.Площадь участка 10сот.Газоснабжение: центральное.Водоснабжение: скважина 14м, в доме (есть возможность подключения к центральному)Водоотведение: локальное 4кольца по 1,5м (есть возможность подключения к центральному)Материалы постройки: СИП-панели короед.Фундамент: сваи.Электрика вся по госту, доступ ко всем коробкам.Также максимально доступ ко всем коммуникациям водоотвода.Отопление газ.Состояние ремонта на фото, но лучше посмотреть в живую.Инфраструктура: Школа № 21,так-же имеются сетевые магазины.Возникли вопросы звоните, отвечу.Обременений нет.Просмотр по договоренности в удобное время.
✅ Предоставление консультаций по вопросам, связанным с покупкой недвижимости, в том числе с использованием кредитных средств, жилищных сертификатов, материнского (семейного) капитала.
✅ Помощь в формировании пакета документов (для каждого объекта индивидуально), необходимых для оформления сделки купли-продажи.
✅ Подбор индивидуальной программы кредитования, согласование в банках ипотечной заявки и объекта, на наиболее выгодных для заемщика условиях.
✅ ЭКСКЛЮЗИВНО: ипотека без справок и подтверждения дохода; одобрение ипотеки при отсутствии первоначального взноса (трейд-ин); доступна опция понижения ставки по ипотеке, применение скидки от нашего агентства; проведение сделки дистанционно.
✅ Наш офис ул. Восточная 42/3 АН АДРЕСА
ID объекта в нашей базе: 1114
Тип недвижимости
Адрес
Этажность
Площадь
Дом
Россия, Оренбургская обл, Оренбург, Земская 19
2
104
ID объявления
Обновлено
Создано
Действительно до
810061
2026-01-13 05:22:14
2026-01-13 05:22:14
2026-04-13 05:22:14

8 900 000 ₽
5-комн. квартира
Россия, Оренбургская обл, Оренбург, ул. Бугурусланская,60

10 150 000 ₽
Дом
Россия, Оренбургская обл, Оренбург, п. Весенний, ул. Агатовая, д. 10

5 950 000 ₽
Дом
Россия, Оренбургская обл, Оренбург, 12

6 200 000 ₽
2-комн. квартира
Россия, Оренбургская обл, Оренбург, ул. Братьев Хусаиновых,8

7 999 000 ₽
Дом
Россия, Оренбургская обл, Оренбург, Рублева

3 990 000 ₽
3-комн. квартира
Россия, Оренбургская обл, Оренбург, ул. Авиационная,20

3 800 000 ₽
Дом
Россия, Оренбургская обл, Оренбург, г.Оренбург, СНТ "Бургаз", дом 225

4 300 000 ₽
Дом
Россия, Оренбургская обл, Оренбург, СНТ Строитель, ул. Сиреневая

7 999 000 ₽
Дом
Россия, Оренбургская обл, Оренбург, Рублева 43

6 330 000 ₽
3-комн. квартира
Россия, Оренбургская обл, Оренбург, пер. Неплюева,4

2 499 000 ₽
2-комн. квартира
Россия, Оренбургская обл, Оренбург, ул. 1 Мая,148

7 499 000 ₽
Дом
Россия, Оренбургская обл, Оренбург, с.Нежинка, ул.Урожайная

5 850 000 ₽
3-комн. квартира
Россия, Оренбургская обл, Оренбург, ул. Дружбы,11/2

7 490 000 ₽
Дом
Россия, Оренбургская обл, Оренбург, ул. Лесная,32

6 300 000 ₽
Дом
Россия, Оренбургская обл, Оренбург, г. Оренбург,С. Благословенка, жк Марьино

4 999 000 ₽
Дом
Россия, Оренбургская обл, Оренбург, г.Оренбург, СНТ Авиатор-2, ул.1-я Линия

4 300 000 ₽
Дом
Россия, Оренбургская обл, Оренбург, г. Оренбург, с. Пруды, ул. Береговая 25, к.2
2 399 000 ₽
1-комн. квартира
Россия, Оренбургская обл, Оренбург, с.нежинка ул.фестивальная 29

6 499 000 ₽
Дом
Россия, Оренбургская обл, Оренбург, СНТ Авиатор-3, ул.Пограничная

4 799 000 ₽
Дом
Россия, Оренбургская обл, Оренбург, СНТ Авиатор-2, ул. 1-я линия

4 610 000 ₽
2-комн. квартира
Россия, Оренбургская обл, Оренбург, пер. Неплюева,2

3 300 000 ₽
3-комн. квартира
Россия, Оренбургская обл, Оренбург, ул. Желябова,17

10 499 000 ₽
Дом
Россия, Оренбургская обл, Оренбург, с. Нежинка

6 500 000 ₽
Дом
Россия, Оренбургская обл, Оренбург, г.Оренбург,СНТ Фонтан,Виноградная 443