АН АДРЕСА
a.borisova-adresa@yandex.ru
Скажите продавцу, что вы нашли объявление на 156.ru
1
/
3
9 161 690 ₽
13
Оренбург
АН АДРЕСА
Документы готовы, быстрый выход на сделку!!!!ДоступностьСемейная ипотека 6 %, сельская ипотека 3 %
Наши дома подходят под субсидированные ипотечные программы, военной ипотекой, различными жилищными сертификатами и материнским капиталом. Все это делает покупку максимально удобной и комфортной для наших клиентов, а самое главное выгодной!
Материал стен: газоблоки
Терраса или веранда: покрыты керамогранитом
Лестница: металлический каркас
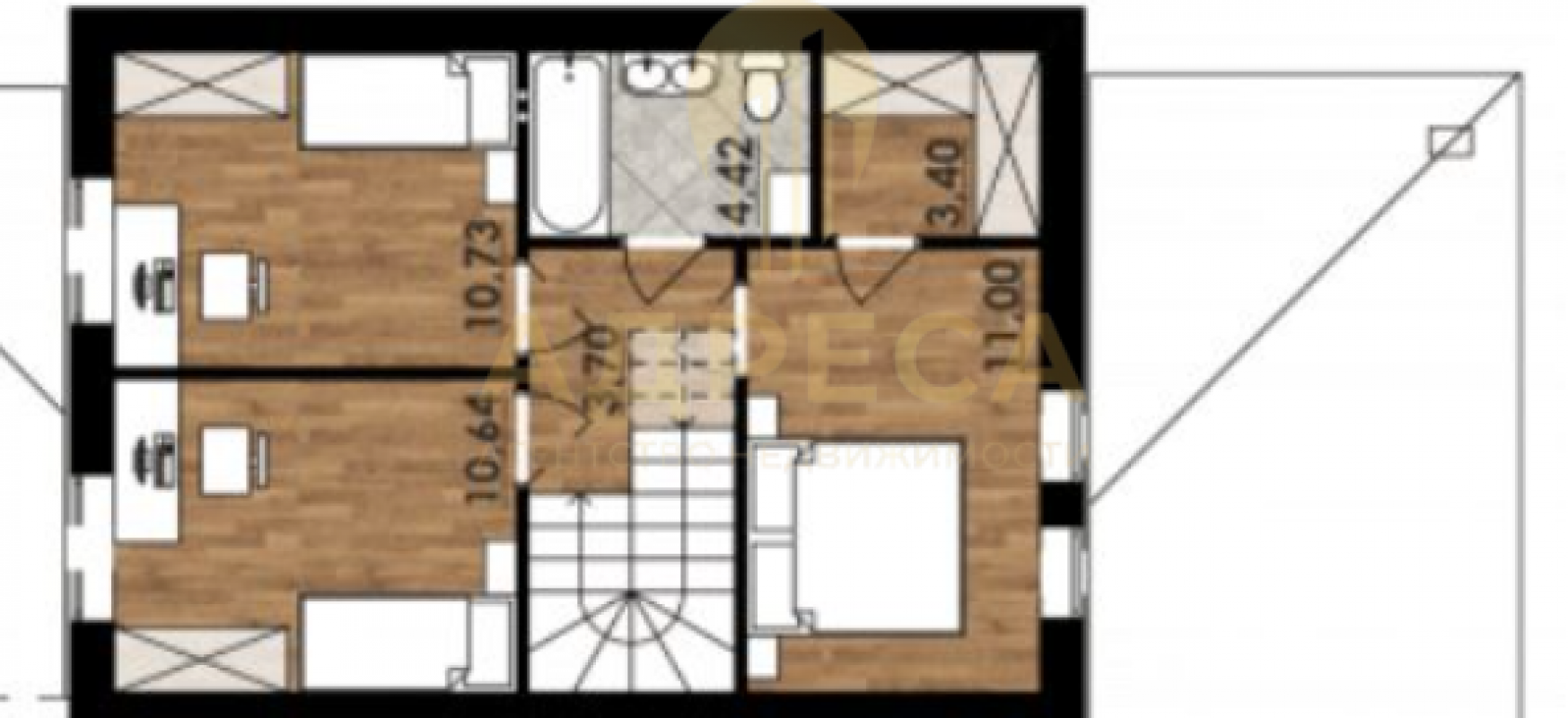
Санузел: на 1 и 2 этажах
Коммуникации: электричество, газ, отопление, канализация
Ремонт: улучшенная предчистовая отделка
Интернет и ТВ: Wi-Fi, телевидение
Парковка: парковочное место
Транспортная доступность: асфальтированная дорога, остановка общественного транспорта
Инфраструктура: магазин, аптека, детский сад, школа
Расстояние до центра города: 12 км
В подарок: территория участка огорожена забором, смонтированы въездные ворота под автомобиль и калитка с электромеханическим замком, уличное освещение, установлен почтовый ящик. Вокруг дома залита бетонная отмостка, бетонная дорожка и площадка под автомобиль, выполнено уличное освещение.
Внутренная отделка
стены оштукатурены по маякам, отшпатлеваны под обои
полы – утепленная армированная бетонная стяжка с последующим устройством наливного пола
установлена пластиковая подоконная доска, дверные и оконные откосы облагорожены
Качество
Наши дома построены из заводского газобетонного блока КОТТЕДЖ, а фасад облицован керамическим кирпичом. Установлены качественные ПВХ окна с двойным мультифункциональным стеклопакетом и надежная металлическая дверь с терморазрывом. В качестве кровельного покрытия выбрана двухслойная гибкая черепица Shinglas от компании ТЕХНОНИКОЛЬ, карниз подшит металлическими софитами, смонтирована водосточная система производства ТЕХНОНИКОЛЬ.
Инфраструктура
Поселок имеет развитую инфраструктуру, в шаговой доступности школа, детский сад, сетевые магазины, аптеки и ФАП. Поселок имеет хорошую транспортную доступность, ходит общественный транспорт. Сельская прописка и тарифы гарантируют вам экономию бюджета на обслуживание дома.
ОТ НАС: помощь в одобрении ипотеки ,полное юридическое сопровождение, помощь в продаже вашей недвижимости, работа с сертификатами.ПРОСМОТР В УДОБНОЕ ДЛЯ ВАС ВРЕМЯ, ПО ПРЕДВАРИТЕЛЬНОЙ ДОГОВОРЕННОСТИ!
ID объекта в нашей базе: 1537
Адрес
Этажность
Площадь
Россия, Оренбургская обл, Оренбург, 41 а
2
102
ID объявления
Обновлено
Создано
Действительно до
803333
2026-01-02 05:44:56
2026-01-02 05:44:56
2026-04-02 05:44:56

3 800 000 ₽
Дом
Россия, Оренбургская обл, Оренбург, г.Оренбург, СНТ "Бургаз", дом 225

850 000 ₽
Земельный участок
Россия, Оренбургская обл, Оренбург, Оренбургская область, г. Оренбург, С/Т Калина Красная, 380

3 560 000 ₽
1-комн. квартира
Россия, Оренбургская обл, Оренбург, ул. Беляевская,15

8 000 000 ₽
Земельный участок
Россия, Оренбургская обл, Оренбург, оренбургская обл., р-н Оренбургский, с/с Весенний, с/т "Солнечный", Линия 9, Участок №6

4 399 000 ₽
Россия, Оренбургская обл, Оренбург, г.Оренбург, мк-р Солнечный, ул.Ивановская, 3А

6 500 000 ₽
Дом
Россия, Оренбургская обл, Оренбург, г.Оренбург,СНТ Фонтан,Виноградная 443

6 800 000 ₽
Дом
Россия, Оренбургская обл, Оренбург, с.Благословенка,ул Северная

10 499 000 ₽
Дом
Россия, Оренбургская обл, Оренбург, с. Нежинка

6 299 000 ₽
Дом
Россия, Оренбургская обл, Оренбург, р-н Сакмарский, СНТ "Сокол", ул. 4А, д.885

6 500 000 ₽
Дом
Россия, Оренбургская обл, Оренбург, Array

5 000 000 ₽
Россия, Оренбургская обл, Оренбург, ул. Ярославская

5 300 000 ₽
Россия, Оренбургская обл, Оренбург, Оренбургский р-н, с.Нежинка, ул.Заречная

2 200 000 ₽
2-комн. квартира
Россия, Оренбургская обл, Оренбург, 20

7 480 000 ₽
2-комн. квартира
Россия, Оренбургская обл, Оренбург, ул. Березка,21

5 150 000 ₽
Дом
Россия, Оренбургская обл, Оренбург, ул. Степана Разина,65
2 966 040 ₽
1-комн. квартира
Россия, Оренбургская обл, Оренбург, ул. Юркина, д. 2

7 490 000 ₽
Дом
Россия, Оренбургская обл, Оренбург, ул. Лесная,32

6 146 000 ₽
Дом
Россия, Оренбургская обл, Оренбург, Array

1 100 000 ₽
2-комн. квартира
Россия, Оренбургская обл, Оренбург, ул. Геофизиков,3А

7 999 000 ₽
Дом
Россия, Оренбургская обл, Оренбург, Ростоши-2, ул. 3 Линия

4 099 000 ₽
1-комн. квартира
Россия, Оренбургская обл, Оренбург, ул. Брестская,9

6 500 000 ₽
Дом
Россия, Оренбургская обл, Оренбург, г. Оренбург, пос. Весенний, СНТСН Карачи, ул. Буравиков, 209

4 999 000 ₽
Дом
Россия, Оренбургская обл, Оренбург, г.Оренбург, СНТ Авиатор-2, ул.1-я Линия

6 200 000 ₽
2-комн. квартира
Россия, Оренбургская обл, Оренбург, ул. Братьев Хусаиновых,8