АН АДРЕСА
inozemceva-adresa@yandex.ru
Скажите продавцу, что вы нашли объявление на 156.ru
1
/
3
4 300 000 ₽
10
Оренбург
АН АДРЕСА
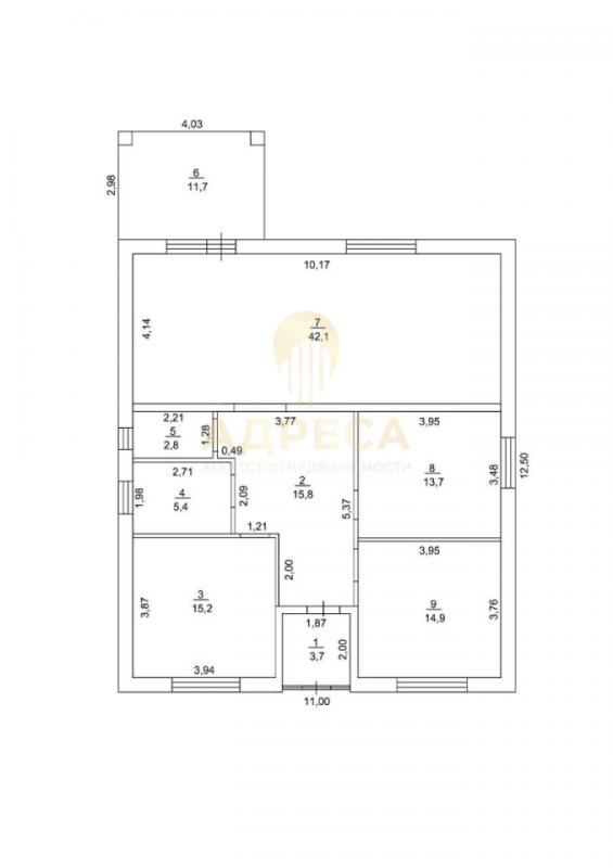
🏡ДOMА 🏡 OТ ЗАСTPОЙЩИКА 🏡 ДЕЙCТBУЮТ BСЕ BИДЫ ЛЬГОTHЫX ИПOTEK❗️СЕМЕЙНАЯ ИПОТЕКА❗️ИПОТЕКА СВО ❗️СЕЛЬСКАЯ ИПОТЕКА❗️ВОЕННАЯ ИПОТЕКА❗️ВСЕ ВИДЫ СЕРТИФИКАТОВ❗️МАТЕРИНСКИЙ КАПИТАЛПpедлaгаем НОBЫЕ ДОМА oт ЗAСТРОЙЩИКA в коттеджном поселке "Южное", (Сулак)📍10 км. до центра города, 7 минут на машине.📍100 мeтpов дo oстановки общественного транспорта, автобус №24, 24сДом 80 м.кв, 5,5 соток земли. Современная востребованная планировка - большая кухня-гостиная 28 м.кв., панорамные окна с выходом на террасу, 2 спальни по 14 м.кв., холл 13 м.кв., 2 санузла.📍В доме качественная предчистовая отделка:Стены отштукатурены, отшпаклеваны, готовы под поклейку обоев.Во всех комнатах матовый натяжной потолок.Пластиковые окна, двойной стеклопакет мультистекло.По всему дому теплые водяные полы, каждая комната на отдельном контуре, радиаторы во всех комнатах, установлена гребенка с возможностью регулировать температуру.Входная дверь двухконтурная, с терморазрывом.Имеется выход на задний двор из кухни-гостиной.Фундамент: глубокий 2 метра свайно-заливной,через каждые 1,8 метра сваи, засыпка глина, трамбовка, черновая заливка, утеплитель пенополистирол, теплый пол, чистовая заливка.Стены: керамзитоблок, утеплитель 10 см, облицовочный красный керамический кирпич.Крыша: перекрытия доска сплошная, утеплитель 20 см, гидро-паро-изоляция, покрытие металло-черепица, цвет "шоколад". Фронты зашиты металло-профилем.Отмостка по всему периметру дома.Коммуникации:Электричество центральное, электропроводка разведена по всему дому, кабель ГОСТ, оплата по счетчикам.Вода своя скважина 30 метров, установлен погружной насос.Отопление автономное от электрокотла.Канализация септик 6 м.куб.Участок ровный, правильной формы.Дома удачно расположены с возможностью пристроить к ним гараж, на заднем участке расположить баню. Широкие подъездные пути.Расположение и инфраструктура:📍Территория относится к Экспериментальному сельсовету - у вас будет сельская прописка и, как следствие, низкие коммунальные платежи, дешёвый полис ОСАГО и т.д. 📍До остановки 100 метров, городские маршруты №24, 24с. В поселке имеютя продуктовые магазины. Выезд на улицу Донгузская, Максима Горького, Чичерина, по автодугу Загородное шоссе . Распологается вблизи Пугачи, Южный, Набережная Урала. Детский сад, школа, поликлиника находятся в Пугачи, Южный - Школа №65, Спортивная школа №6, Детские сады №63, 122, 37. Поселок активно развивается и застраивается!Не упустите шанс стать счастливым обладателем этого дома, который предлагает вам неповторимый образ жизни в окружении природы.Свяжитесь с нами сейчас, чтобы узнать больше и сделать свою мечту реальностью!📍Как купить:〽️Наличный расчет 〽️СЕМЕЙНАЯ ИПОТЕКА〽️ИПОТЕКА НА СТРОИТЕЛЬСТВО ДОМА 〽️материнский капитал- сертификаты〽️военная ипотека.Дом и земля в собственности.Документы проверены!Один собственник!Быстрый выход на сделку!Форму оплаты обсуждаю по телефону.
По показу звоните и пишите заранее, покажу в удобное для вас время._____________________________________________________
При покупке данного объекта для Вас бесплатные юридические услуги по сопровождению сделки.Предоставление консультации по вопросам, связанным с покупкой и продажей недвижимости, в том числе с использованием кредитных средств, всех видов сертификатов.Поможем собрать все необходимые документы для подготовки к сделки.Подберём индивидуальную программу кредитования на более выгодных для Вас условиях.Одобрение ипотеки без справок и поручителей.Агентство недвижимости "АДРЕСА "Адрес: Российская Федерация, Оренбургская область, г.Оренбург, ул.Восточная 42/3
#НОВЫЙ ДОМ #ЮЖНЫЙ#ПУГАЧИ#СЕЛЬСКАЯ ИПОТЕКА#ОРЕНБУРГ ДОМ #КОТТЕДЖ #ИПОТЕКА #СЕМЕЙНАЯ ИПОТЕКА #ДОМ ОРЕНБУРГ #ГОСПОДДЕРЖКА #ЮЖНЫЙ УРАЛ #СЕЛЬСКАЯ ПРОПИСКА
ID объекта в нашей базе: 917
Тип недвижимости
Адрес
Этажность
Площадь
Дом
Россия, Оренбургская обл, Оренбург, Оренбургский р-н, Экспериментальный сельсовет, Коттеджный поселок в СНТ Южное, ул. Липовая
1
80
ID объявления
Обновлено
Создано
Действительно до
803182
2026-01-02 05:18:41
2026-01-02 05:18:41
2026-04-02 05:18:41

6 999 000 ₽
Дом
Россия, Оренбургская обл, Оренбург, переулок Аптекарьский

4 399 000 ₽
Дом
Россия, Оренбургская обл, Оренбург, г.Оренбург, мк-р Солнечный, ул.Ивановская, 3А

6 300 000 ₽
Дом
Россия, Оренбургская обл, Оренбург, г. Оренбург,С. Благословенка, жк Марьино

6 299 000 ₽
Дом
Россия, Оренбургская обл, Оренбург, р-н Сакмарский, СНТ "Сокол", ул. 4А, д.885

5 300 000 ₽
2-комн. квартира
Россия, Оренбургская обл, Оренбург, ул. Планерная,4

3 400 000 ₽
3-комн. квартира
Россия, Оренбургская обл, Оренбург, ул. Желябова,17

5 000 000 ₽
Россия, Оренбургская обл, Оренбург, ул. Ярославская

4 610 000 ₽
2-комн. квартира
Россия, Оренбургская обл, Оренбург, пер. Неплюева,2

7 021 920 ₽
Россия, Оренбургская обл, Оренбург, ул. Есенина,44 а

1 500 000 ₽
Дом
Россия, Оренбургская обл, Оренбург, Оренбургская обл., г. Оренбург, г. Оренбург СНТ "Гидропресс-Госматрезервы-станция" 1-сиреневая 46

7 870 000 ₽
Дом
Россия, Оренбургская обл, Оренбург, Земская 19

2 950 000 ₽
2-комн. квартира
Россия, Оренбургская обл, Оренбург, ул. Братьев Башиловых,3

3 390 000 ₽
1-комн. квартира
Россия, Оренбургская обл, Оренбург, ул. Волгоградская,1/1

9 800 000 ₽
Дом
Россия, Оренбургская обл, Оренбург, Оренбургский р-н, с. Нежинка

5 450 000 ₽
Дом
Россия, Оренбургская обл, Оренбург, с.Пруды ул.Центральная 25А

990 000 ₽
Дача
Россия, Оренбургская обл, Оренбург, Оренбурский район, Благословенский сельсовет, СНТ Агропромовец, улица 3 Линия, участок 18

26 900 000 ₽
Помещение
Россия, Оренбургская обл, Оренбург, ул. Сахалинская,4

1 100 000 ₽
2-комн. квартира
Россия, Оренбургская обл, Оренбург, ул. Геофизиков,3А

4 610 000 ₽
1-комн. квартира
Россия, Оренбургская обл, Оренбург, пер.Слесарный 7

6 500 000 ₽
Дом
Россия, Оренбургская обл, Оренбург, г.Оренбург,СНТ Фонтан,Виноградная 443

1 850 000 ₽
Дом
Россия, Оренбургская обл, Оренбург, ул. Фрунзе 40

4 650 000 ₽
1-комн. квартира
Россия, Оренбургская обл, Оренбург, пер. Слесарный,7

19 500 000 ₽
Дом
Россия, Оренбургская обл, Оренбург, ул. Бугурусланская,60

8 250 000 ₽
Дом
Россия, Оренбургская обл, Оренбург, СНТ Авиато- 3, ул. Десантная 43