АН АДРЕСА
Issarova-adresa@yandex.ru
Скажите продавцу, что вы нашли объявление на 156.ru
1
/
3
4 400 000 ₽
15
Оренбург
АН АДРЕСА
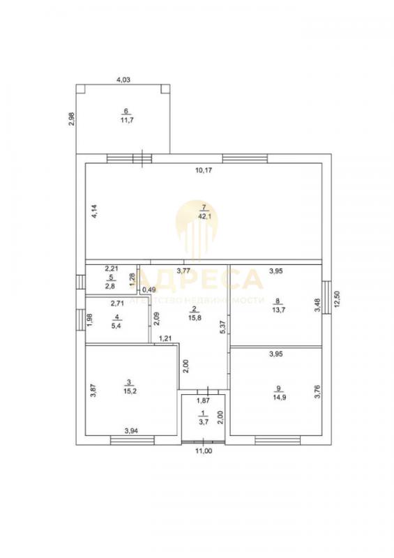
Продается уютный таунхаус.
Предлагаем вашему вниманию просторный таунхаус площадью 50 кв.м. В отличной локации! Дом ждёт своих новых владельцев!
🔹 Свободная планировка: Возможность обустроить пространство под себя– от зонирования до выбора стиля интерьера.
🔹 Косметический ремонт: Полностью готов к проживанию. Ламинат на полу, натяжные потолки, двери, санузел в плитке с современной сантехникой, аккуратные обои на стенах.
🔹 Небольшой земельный участок 2.2 сотки: Идеальное место для отдыха после трудового дня или игр с детьми.
🔹 Коммуникации: Центральное водоснабжение, канализация, газовое отопление – всё уже подключено и функционирует.
🏠 Местоположение: Таунхаус расположен в черте города, что обеспечивает комфортную городскую жизньбез необходимости длительных поездок за пределы населённого пункта. Развитая инфраструктура рядом: магазины, школы, детские сады, остановки общественного транспорта – всё в шаговой доступности.Это идеальный вариант для тех, кто ценит тишину пригородного проживания с удобствами городской жизни. Ждём вас на просмотр вашего будущего дома.Звоните прямо сейчас, чтобы узнать больше деталей и договориться о встрече.
ID объекта в нашей базе: 1292
Тип недвижимости
Адрес
Этажность
Площадь
Дом
Россия, Оренбургская обл, Оренбург, ул. Ивановская, 3А
1
50
ID объявления
Обновлено
Создано
Действительно до
802630
2026-01-01 05:29:18
2026-01-01 05:29:18
2026-04-01 05:29:18

2 949 999 ₽
2-комн. квартира
Россия, Оренбургская обл, Оренбург, ул. Восточная,84

7 300 000 ₽
3-комн. квартира
Россия, Оренбургская обл, Оренбург, ул. Мира,3/1

26 900 000 ₽
Помещение
Россия, Оренбургская обл, Оренбург, ул. Сахалинская,4

6 500 000 ₽
Дом
Россия, Оренбургская обл, Оренбург, г.Оренбург,СНТ Фонтан,Виноградная 443

5 899 000 ₽
Дом
Россия, Оренбургская обл, Оренбург, Оренбургский р-н, с.Нежинка, ул.Молодежная

2 950 000 ₽
1-комн. квартира
Россия, Оренбургская обл, Оренбург, ул. Юркина,2

250 000 ₽
Дом
Россия, Оренбургская обл, Оренбург, ул. 13 Линия,105

6 999 000 ₽
Дом
Россия, Оренбургская обл, Оренбург, переулок Аптекарьский

7 055 000 ₽
Дом
Россия, Оренбургская обл, Оренбург, 8

8 900 000 ₽
5-комн. квартира
Россия, Оренбургская обл, Оренбург, ул. Бугурусланская,60

4 399 000 ₽
Россия, Оренбургская обл, Оренбург, г.Оренбург, мк-р Солнечный, ул.Ивановская, 3А

4 580 000 ₽
1-комн. квартира
Россия, Оренбургская обл, Оренбург, пер. Слесарный

7 500 000 ₽
Дом
Россия, Оренбургская обл, Оренбург, Оренбургская обл., г.Оренбург, мкр. поселок Кушкуль, ул.Цветочная , дом 11А

6 500 000 ₽
Дом
Россия, Оренбургская обл, Оренбург, Array

1 350 000 ₽
Дом
Россия, Оренбургская обл, Оренбург, посёлок Подмаячный, улица Квартал № 20, 139

4 610 000 ₽
1-комн. квартира
Россия, Оренбургская обл, Оренбург, пер. Слесарный,7

4 355 000 ₽
1-комн. квартира
Россия, Оренбургская обл, Оренбург, ул. Рокоссовского,25

9 400 000 ₽
Дом
Россия, Оренбургская обл, Оренбург, ул. Спортивная,21

900 000 ₽
1-комн. квартира
Россия, Оренбургская обл, Оренбург, ул. Братская,7

2 390 000 ₽
1-комн. квартира
Россия, Оренбургская обл, Оренбург, ул. Конституции СССР,24/1 к 1

4 390 000 ₽
Дом
Россия, Оренбургская обл, Оренбург, мкр. Солнечный, ул. Ивановская, 3А

4 300 000 ₽
Дом
Россия, Оренбургская обл, Оренбург, СНТ Строитель, ул. Сиреневая

3 850 000 ₽
2-комн. квартира
Россия, Оренбургская обл, Оренбург, ул. Авиационная,20

7 499 000 ₽
Дом
Россия, Оренбургская обл, Оренбург, с.Нежинка, ул.Урожайная