АН АДРЕСА
inozemceva-adresa@yandex.ru
Скажите продавцу, что вы нашли объявление на 156.ru
1
/
3
4 399 000 ₽
11
Оренбург
АН АДРЕСА
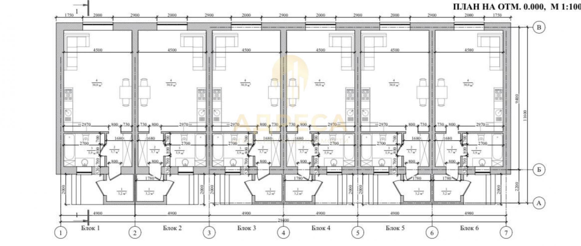
Пpедлaгаем НОBЫЙ ТАУНХАУС ОТ ЗАСТРОЙЩИКА 🏡 в п.Солнечный.С РЕМОНТОМ !!! 📍2 км., 5 минут до городa Дом 50 м.кв, 2,2 сотки земли.Современная планировка - большая просторная кухня-гостиная 31 м.кв., холл 5 м.кв., СУС 6 м.кв.📍В доме сделан качественный ремонт:Стены отштукатурены, отшпаклеваны, оклеены обоями.По всему тауну натяжной матовый потолок с точечными светильниками и выводом на центральную люстру.Пластиковые окна, двойной стеклопакет.По всему дому теплые водяные полы, установлены радиаторы, гребенка с возможностью регулировать температуру.В кухне-гостиной выложен ламинат, в санузле и холле кафель.В санузле установлена ванна, раковина, унитаз.Входная дверь двухконтурная, с терморазрывом. Фундамент: глубокий 2 метра свайно-заливной.Стены: газоблок, облицовочный керамический кирпич.Крыша: утеплитель 20 см, гидро-паро-изоляция, покрытие металлопрофиль. Фронты зашиты металло-профилем.Отмостка по всему периметру дома.Коммуникации: Электричество центральное, электропроводка разведена по всему дому, кабель ГОСТ, оплата по счетчикам.Вода центральная.Отопление автономное, установлен двухконтурный газовый котёл.Канализация центральная.Участок ровный, правильной формы. Широкие подъездные пути.Расположение и инфраструктура:📍 Остановка общественного транспорта в 3 мин. ходьбы. - маршрут №57н (22)📍 Детский сад №195, №200, №66, №125, Школа №3, Лицей №7, МОЛЛ Армада 2, Городская клиническая больница №1.Не упустите шанс стать счастливым обладателем этого таунхауса.Свяжитесь с нами сейчас, чтобы узнать больше и сделать свою мечту реальностью!Дом и земля в собственности. Документы проверены! Один собственник! Быстрый выход на сделку! Форму оплаты обсуждаю по телефону._________________________________________________________________________При покупке данного объекта для Вас бесплатные юридические услуги по сопровождению сделки. Предоставление консультации по вопросам, связанным с покупкой и продажей недвижимости, в том числе с использованием кредитных средств, всех видов сертификатов. Поможем собрать все необходимые документы для подготовки к сделки.Агентство недвижимости "АДРЕСА "Адрес: г.Оренбург, ул.Восточная 42/3
ID объекта в нашей базе: 1502
Адрес
Этажность
Площадь
Россия, Оренбургская обл, Оренбург, г.Оренбург, мк-р Солнечный, ул.Ивановская, 3А
1
50
ID объявления
Обновлено
Создано
Действительно до
797034
2025-12-23 06:06:15
2025-12-23 06:06:15
2026-03-23 06:06:15

7 500 000 ₽
Дом
Россия, Оренбургская обл, Оренбург, Array

5 200 000 ₽
Дом
Россия, Оренбургская обл, Оренбург, г.Оренбург, СНТ Авиатор-2, ул. 1-я Линия, уч.430

7 600 000 ₽
Дом
Россия, Оренбургская обл, Оренбург, Оренбургская обл., г. Оренбург, СНТ Росинка, 26

4 300 000 ₽
Дом
Россия, Оренбургская обл, Оренбург, г. Оренбург, с. Пруды, ул. Береговая 25, к.2

9 990 000 ₽
Дом
Россия, Оренбургская обл, Оренбург, 58

4 590 000 ₽
3-комн. квартира
Россия, Оренбургская обл, Оренбург, ул. Дружбы,3/4

6 499 000 ₽
Дом
Россия, Оренбургская обл, Оренбург, СНТ Авиатор-3, ул.Пограничная

5 899 000 ₽
Дом
Россия, Оренбургская обл, Оренбург, Оренбургский р-н, с.Нежинка, ул.Молодежная

6 000 000 ₽
3-комн. квартира
Россия, Оренбургская обл, Оренбург, ул. Юркина,2

7 200 000 ₽
2-комн. квартира
Россия, Оренбургская обл, Оренбург, пр-кт. Победы,149/1

4 299 000 ₽
Дом
Россия, Оренбургская обл, Оренбург, Оренбургский р-н, г.Оренбург, ул.Измайловская

4 390 000 ₽
Дом
Россия, Оренбургская обл, Оренбург, мкр. Солнечный, ул. Ивановская, 3А

3 800 000 ₽
Дом
Россия, Оренбургская обл, Оренбург, г.Оренбург, СНТ "Бургаз", дом 225

1 130 000 ₽
Комната
Россия, Оренбургская обл, Оренбург, ул. Плеханова,17

11 500 000 ₽
Дом
Россия, Оренбургская обл, Оренбург, п.Ленина, ул. 2-я Луговая

4 650 000 ₽
1-комн. квартира
Россия, Оренбургская обл, Оренбург, пер. Слесарный

6 500 000 ₽
Дом
Россия, Оренбургская обл, Оренбург, г.Оренбург,СНТ Фонтан,Виноградная 443

3 500 000 ₽
Земельный участок
Россия, Оренбургская обл, Оренбург, пос Весенний, квартал им 70 лет Великой победы

6 500 000 ₽
Россия, Оренбургская обл, Оренбург, Российская Федерация, Оренбургская область, муниципальный район Оренбургский, сельское поселение Подгородне-Покровский сельсовет, село Подгородняя Покровка, улица Переволоцкая, земельный участок 21/4

8 999 000 ₽
Дом
Россия, Оренбургская обл, Оренбург, Рублева 46

4 399 000 ₽
Дом
Россия, Оренбургская обл, Оренбург, г.Оренбург, мк-р Солнечный, ул.Ивановская, 3А

5 300 000 ₽
Россия, Оренбургская обл, Оренбург, Оренбургский р-н, с.Нежинка, ул.Заречная

2 850 000 ₽
1-комн. квартира
Россия, Оренбургская обл, Оренбург, ул. Юркина,2

1 699 000 ₽
1-комн. квартира
Россия, Оренбургская обл, Оренбург, ул. 1 Мая,148