АН АДРЕСА
a.borisova-adresa@yandex.ru
Скажите продавцу, что вы нашли объявление на 156.ru
1
/
3
9 161 690 ₽
5
Оренбург
АН АДРЕСА
Документы готовы, быстрый выход на сделку!!!!ДоступностьСемейная ипотека 6 %, сельская ипотека 3 %
Наши дома подходят под субсидированные ипотечные программы, военной ипотекой, различными жилищными сертификатами и материнским капиталом. Все это делает покупку максимально удобной и комфортной для наших клиентов, а самое главное выгодной!
Материал стен: газоблоки
Терраса или веранда: покрыты керамогранитом
Лестница: металлический каркас
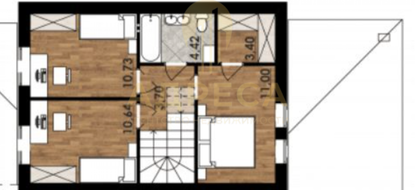
Санузел: на 1 и 2 этажах
Коммуникации: электричество, газ, отопление, канализация
Ремонт: улучшенная предчистовая отделка
Интернет и ТВ: Wi-Fi, телевидение
Парковка: парковочное место
Транспортная доступность: асфальтированная дорога, остановка общественного транспорта
Инфраструктура: магазин, аптека, детский сад, школа
Расстояние до центра города: 12 км
В подарок: территория участка огорожена забором, смонтированы въездные ворота под автомобиль и калитка с электромеханическим замком, уличное освещение, установлен почтовый ящик. Вокруг дома залита бетонная отмостка, бетонная дорожка и площадка под автомобиль, выполнено уличное освещение.
Внутренная отделка
стены оштукатурены по маякам, отшпатлеваны под обои
полы – утепленная армированная бетонная стяжка с последующим устройством наливного пола
установлена пластиковая подоконная доска, дверные и оконные откосы облагорожены
Качество
Наши дома построены из заводского газобетонного блока КОТТЕДЖ, а фасад облицован керамическим кирпичом. Установлены качественные ПВХ окна с двойным мультифункциональным стеклопакетом и надежная металлическая дверь с терморазрывом. В качестве кровельного покрытия выбрана двухслойная гибкая черепица Shinglas от компании ТЕХНОНИКОЛЬ, карниз подшит металлическими софитами, смонтирована водосточная система производства ТЕХНОНИКОЛЬ.
Инфраструктура
Поселок имеет развитую инфраструктуру, в шаговой доступности школа, детский сад, сетевые магазины, аптеки и ФАП. Поселок имеет хорошую транспортную доступность, ходит общественный транспорт. Сельская прописка и тарифы гарантируют вам экономию бюджета на обслуживание дома.
ОТ НАС: помощь в одобрении ипотеки ,полное юридическое сопровождение, помощь в продаже вашей недвижимости, работа с сертификатами.ПРОСМОТР В УДОБНОЕ ДЛЯ ВАС ВРЕМЯ, ПО ПРЕДВАРИТЕЛЬНОЙ ДОГОВОРЕННОСТИ!
ID объекта в нашей базе: 1537
Адрес
Этажность
Площадь
Россия, Оренбургская обл, Оренбург, 41 а
2
102
ID объявления
Обновлено
Создано
Действительно до
789775
2025-12-12 05:51:03
2025-12-12 05:51:03
2026-03-12 05:51:03

3 300 000 ₽
2-комн. квартира
Россия, Оренбургская обл, Оренбург, ул. Просвещения,19

6 299 000 ₽
Дом
Россия, Оренбургская обл, Оренбург, р-н Сакмарский, СНТ "Сокол", ул. 4А, д.885

4 610 000 ₽
1-комн. квартира
Россия, Оренбургская обл, Оренбург, пер.Слесарный 7

6 990 000 ₽
2-комн. квартира
Россия, Оренбургская обл, Оренбург, ул. Поляничко,12
6 700 000 ₽
Дом
Россия, Оренбургская обл, Оренбург, СНТ Авиато- 3, ул. Десантная 43

4 610 000 ₽
1-комн. квартира
Россия, Оренбургская обл, Оренбург, пер. Слесарный,7

6 200 000 ₽
3-комн. квартира
Россия, Оренбургская обл, Оренбург, ул. Народная,36

7 900 000 ₽
Дом
Россия, Оренбургская обл, Оренбург, СНТ Дубовый Плес

5 600 000 ₽
Дом
Россия, Оренбургская обл, Оренбург, Оренбургский р-н, с.Нежинка, ул.Журавлиная, 17а, коттеджный пос. Дворянский

7 021 920 ₽
Россия, Оренбургская обл, Оренбург, ул. Есенина,44 а

4 610 000 ₽
1-комн. квартира
Россия, Оренбургская обл, Оренбург, пер. Слесарный

5 799 000 ₽
Дом
Россия, Оренбургская обл, Оренбург, Приволжская 64

5 899 000 ₽
3-комн. квартира
Россия, Оренбургская обл, Оренбург, пр-кт. Парковый,50

635 000 ₽
Земельный участок
Россия, Оренбургская обл, Оренбург, 21б

5 140 000 ₽
3-комн. квартира
Россия, Оренбургская обл, Оренбург, ул. Абдрашитова,234

4 650 000 ₽
1-комн. квартира
Россия, Оренбургская обл, Оренбург, пер. Слесарный,7

7 999 000 ₽
5-комн. квартира
Россия, Оренбургская обл, Оренбург, мкр. 70 лет ВЛКСМ,3

4 710 000 ₽
1-комн. квартира
Россия, Оренбургская обл, Оренбург, пер. Слесарный

4 650 000 ₽
1-комн. квартира
Россия, Оренбургская обл, Оренбург, пер. Слесарный,7

8 300 000 ₽
Дом
Россия, Оренбургская обл, Оренбург, 21

3 990 000 ₽
1-комн. квартира
Россия, Оренбургская обл, Оренбург, ул. Народная,36

6 900 000 ₽
2-комн. квартира
Россия, Оренбургская обл, Оренбург, ленинский район

4 650 000 ₽
1-комн. квартира
Россия, Оренбургская обл, Оренбург, пер. Слесарный.7

2 800 000 ₽
Дом
Россия, Оренбургская обл, Оренбург, ул. Чехова,38