АН АДРЕСА
a.borisova-adresa@yandex.ru
Скажите продавцу, что вы нашли объявление на 156.ru
1
/
3
9 161 690 ₽
2
Оренбург
АН АДРЕСА
Документы готовы, быстрый выход на сделку!!!!ДоступностьСемейная ипотека 6 %, сельская ипотека 3 %
Наши дома подходят под субсидированные ипотечные программы, военной ипотекой, различными жилищными сертификатами и материнским капиталом. Все это делает покупку максимально удобной и комфортной для наших клиентов, а самое главное выгодной!
Материал стен: газоблоки
Терраса или веранда: покрыты керамогранитом
Лестница: металлический каркас
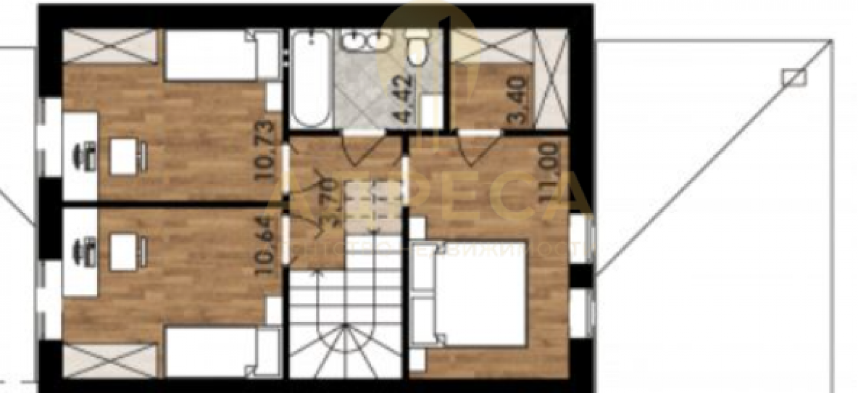
Санузел: на 1 и 2 этажах
Коммуникации: электричество, газ, отопление, канализация
Ремонт: улучшенная предчистовая отделка
Интернет и ТВ: Wi-Fi, телевидение
Парковка: парковочное место
Транспортная доступность: асфальтированная дорога, остановка общественного транспорта
Инфраструктура: магазин, аптека, детский сад, школа
Расстояние до центра города: 12 км
В подарок: территория участка огорожена забором, смонтированы въездные ворота под автомобиль и калитка с электромеханическим замком, уличное освещение, установлен почтовый ящик. Вокруг дома залита бетонная отмостка, бетонная дорожка и площадка под автомобиль, выполнено уличное освещение.
Внутренная отделка
стены оштукатурены по маякам, отшпатлеваны под обои
полы – утепленная армированная бетонная стяжка с последующим устройством наливного пола
установлена пластиковая подоконная доска, дверные и оконные откосы облагорожены
Качество
Наши дома построены из заводского газобетонного блока КОТТЕДЖ, а фасад облицован керамическим кирпичом. Установлены качественные ПВХ окна с двойным мультифункциональным стеклопакетом и надежная металлическая дверь с терморазрывом. В качестве кровельного покрытия выбрана двухслойная гибкая черепица Shinglas от компании ТЕХНОНИКОЛЬ, карниз подшит металлическими софитами, смонтирована водосточная система производства ТЕХНОНИКОЛЬ.
Инфраструктура
Поселок имеет развитую инфраструктуру, в шаговой доступности школа, детский сад, сетевые магазины, аптеки и ФАП. Поселок имеет хорошую транспортную доступность, ходит общественный транспорт. Сельская прописка и тарифы гарантируют вам экономию бюджета на обслуживание дома.
ОТ НАС: помощь в одобрении ипотеки ,полное юридическое сопровождение, помощь в продаже вашей недвижимости, работа с сертификатами.ПРОСМОТР В УДОБНОЕ ДЛЯ ВАС ВРЕМЯ, ПО ПРЕДВАРИТЕЛЬНОЙ ДОГОВОРЕННОСТИ!
ID объекта в нашей базе: 1537
Адрес
Этажность
Площадь
Россия, Оренбургская обл, Оренбург, 41 а
2
102
ID объявления
Обновлено
Создано
Действительно до
785725
2025-12-06 05:48:26
2025-12-06 05:48:26
2026-03-06 05:48:26

6 200 000 ₽
3-комн. квартира
Россия, Оренбургская обл, Оренбург, ул. Народная,36

1 650 000 ₽
1-комн. квартира
Россия, Оренбургская обл, Оренбург, пр-кт. Дзержинского,36/2

8 000 000 ₽
Земельный участок
Россия, Оренбургская обл, Оренбург, оренбургская обл., р-н Оренбургский, с/с Весенний, с/т "Солнечный", Линия 9, Участок №6

15 000 000 ₽
Дом
Россия, Оренбургская обл, Оренбург, Земская 15

6 749 000 ₽
Дом
Россия, Оренбургская обл, Оренбург, г.Оренбург, СНТ "Авиатор-2", ул. 3-я линия

6 150 000 ₽
2-комн. квартира
Россия, Оренбургская обл, Оренбург, пр-кт. Победы,149/2

1 350 000 ₽
Дом
Россия, Оренбургская обл, Оренбург, посёлок Подмаячный, улица Квартал № 20, 139

5 450 000 ₽
Дом
Россия, Оренбургская обл, Оренбург, с.Пруды ул.Центральная 25А

4 799 000 ₽
Дом
Россия, Оренбургская обл, Оренбург, СНТ Авиатор-2, ул. 1-я линия

4 355 000 ₽
1-комн. квартира
Россия, Оренбургская обл, Оренбург, ул. Рокоссовского,25

7 750 000 ₽
3-комн. квартира
Россия, Оренбургская обл, Оренбург, ул. Автомобилистов,15

2 790 000 ₽
3-комн. квартира
Россия, Оренбургская обл, Оренбург, ул. Братьев Башиловых,8

3 550 000 ₽
1-комн. квартира
Россия, Оренбургская обл, Оренбург, ул. Юркина,2

4 399 000 ₽
Дом
Россия, Оренбургская обл, Оренбург, г.Оренбург, мк-р Солнечный, ул.Ивановская, 3А

4 999 000 ₽
Дом
Россия, Оренбургская обл, Оренбург, г. Оренбург, п.Заречный, ул.Ярославская, 4/1

7 200 000 ₽
2-комн. квартира
Россия, Оренбургская обл, Оренбург, пр-кт. Победы,149/1

4 299 000 ₽
Дом
Россия, Оренбургская обл, Оренбург, Оренбургский р-н, г.Оренбург, ул.Измайловская

5 200 000 ₽
2-комн. квартира
Россия, Оренбургская обл, Оренбург, ул. Чкалова,3/2

4 710 000 ₽
1-комн. квартира
Россия, Оренбургская обл, Оренбург, пер. Слесарный

6 200 000 ₽
Дом
Россия, Оренбургская обл, Оренбург, ул. Луговая

3 200 000 ₽
1-комн. квартира

3 450 000 ₽
3-комн. квартира
Россия, Оренбургская обл, Оренбург, ул. Центральная,11

4 400 000 ₽
Дом
Россия, Оренбургская обл, Оренбург, ул. Ивановская, 3А

4 650 000 ₽
1-комн. квартира
Россия, Оренбургская обл, Оренбург, пер. Слесарный,7