Юлия
juliya-056@mail.ru
Скажите продавцу, что вы нашли объявление на 156.ru
1
/
3
4 000 000 ₽
36
Оренбург
Юлия
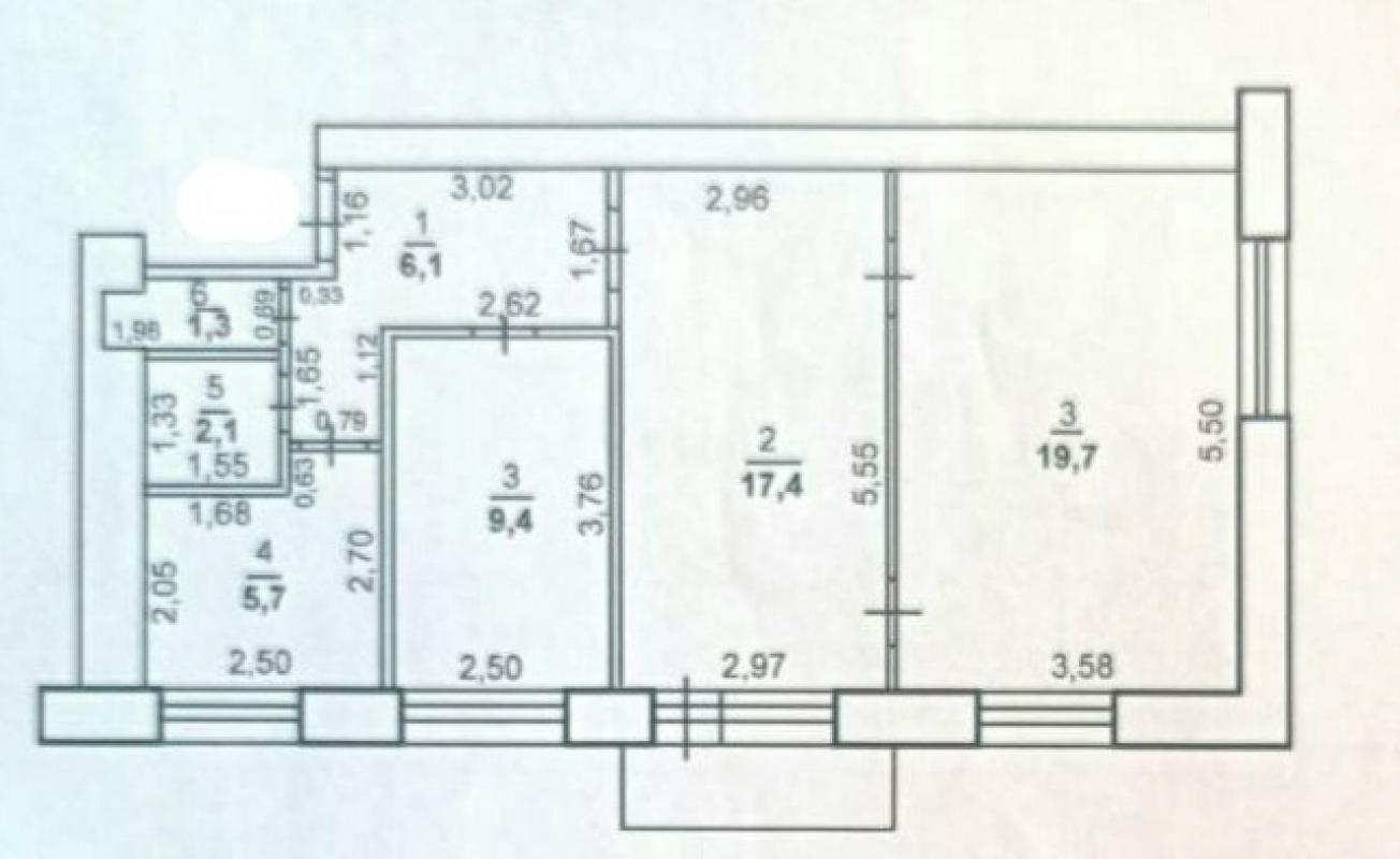
Продам трехкомнатную квартиру в центре города. Кирпичный дом, второй этаж.Комнаты смежно-изолированные. Совмещённый санузел.Погреб во дворе дома будет приятным бонусом новому собственнику. Один взрослый собственник. Долгов и обременений нет.Остановка в трёх минутах ходьбы;Детский сад №109;Школы №39 и 46;Спортивная школа олимпийского резерва №1 им. Н.С. Гейтца;Стрелково-спортивный клуб;Медицинский университет;Корпус № 5 педагогического университета;Оренбургский институт путей и сообщения;Магнит, аптека, оптика, Альфа-страхование - расположены в этом доме;Три парка - Тополя, Перовского, Ленина;Рынок "Локомотив".Квартира свободна от проживающих.Если Вам понравился этот объект, но Ваша недвижимость не продана, окажем помощь в реализации.
Юридическое сопровождение и помощь в одобрение ипотеки при покупке данного объекта бесплатно.
Просмотр по предварительной договоренности.
ID объекта в нашей базе: 132
Тип недвижимости
Адрес
Этажность
Этаж
Площадь
3-комн. квартира
Россия, Оренбургская обл, Оренбург, проезд. Коммунаров,24
5
2
60.7
ID объявления
Обновлено
Создано
Действительно до
787956
2025-12-09 06:27:33
2025-12-09 06:27:33
2026-03-09 06:27:33

1 350 000 ₽
Дом
Россия, Оренбургская обл, Оренбург, посёлок Подмаячный, улица Квартал № 20, 139

3 099 999 ₽
2-комн. квартира
Россия, Оренбургская обл, Оренбург, ул. Братьев Башиловых,3

6 300 000 ₽
Дом
Россия, Оренбургская обл, Оренбург, г. Оренбург,С. Благословенка, жк Марьино

7 200 000 ₽
2-комн. квартира
Россия, Оренбургская обл, Оренбург, пр-кт. Победы,149/1

6 500 000 ₽
Россия, Оренбургская обл, Оренбург, Российская Федерация, Оренбургская область, муниципальный район Оренбургский, сельское поселение Подгородне-Покровский сельсовет, село Подгородняя Покровка, улица Переволоцкая, земельный участок 21/4

8 300 000 ₽
Дом
Россия, Оренбургская обл, Оренбург, 21

1 020 000 ₽
1-комн. квартира
Россия, Оренбургская обл, Оренбург, ул. Братская,7

7 150 000 ₽
2-комн. квартира
Россия, Оренбургская обл, Оренбург, ул. Поляничко,7/1

7 200 000 ₽
2-комн. квартира
Россия, Оренбургская обл, Оренбург, пр-кт. Победы,149/1

4 700 000 ₽
Россия, Оренбургская обл, Оренбург, ул. Лукиана Попова,87

2 649 000 ₽
1-комн. квартира
Россия, Оренбургская обл, Оренбург, ул. Лабужского,10

3 860 000 ₽
1-комн. квартира
Россия, Оренбургская обл, Оренбург, ул. Геннадия Донковцева,5

4 299 000 ₽
Дом
Россия, Оренбургская обл, Оренбург, ул. Оренбургская

6 500 000 ₽
Дом
Россия, Оренбургская обл, Оренбург, г. Оренбург, пос. Весенний, СНТСН Карачи, ул. Буравиков, 209

7 999 000 ₽
5-комн. квартира
Россия, Оренбургская обл, Оренбург, мкр. 70 лет ВЛКСМ,3

6 000 000 ₽
3-комн. квартира
Россия, Оренбургская обл, Оренбург, ул. Юркина,2

2 200 000 ₽
2-комн. квартира
Россия, Оренбургская обл, Оренбург, 20

1 650 000 ₽
1-комн. квартира
Россия, Оренбургская обл, Оренбург, пр-кт. Дзержинского,36/2

6 300 000 ₽
1-комн. квартира
Россия, Оренбургская обл, Оренбург, Чкалова 51/1

4 610 000 ₽
1-комн. квартира
Россия, Оренбургская обл, Оренбург, пер. Слесарный,7

4 610 000 ₽
1-комн. квартира
Россия, Оренбургская обл, Оренбург, пер. Слесарный, 7

4 610 000 ₽
1-комн. квартира
Россия, Оренбургская обл, Оренбург, пер. Слесарный,7

7 600 000 ₽
Дом
Россия, Оренбургская обл, Оренбург, Оренбургская обл., г. Оренбург, СНТ Росинка, 26

1 650 000 ₽
Земельный участок
Россия, Оренбургская обл, Оренбург, СНТ "Заря", ул.Яблоневая, 29