АН АДРЕСА
korneeva-adresa@yandex.ru
Скажите продавцу, что вы нашли объявление на 156.ru
1
/
3
7 300 000 ₽
9
Оренбург
АН АДРЕСА
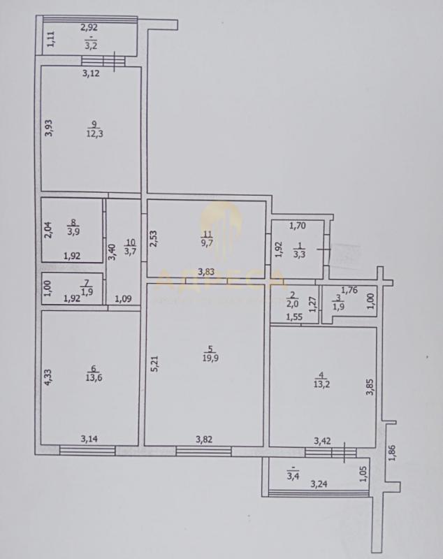
Продаётся просторная трёхкомнатная квартира на комфортном 9 этаже.Район с развитой инфраструктурой: магазины, рынок "Петровский", школа №8, №32, Пушкинский лицей, детский сад №4, №140. В пешей доступности культурный комплекс «Национальная деревня» и парк им. Ю.А. Гагарина.Идеальное предложение для семьи, которая ценит комфортное проживание.Ключевые параметры:· Общая площадь: 85,4 м².· Этаж: 9/16.· Комнаты: изолированные.Описание и преимущества:· Современный ремонт: Полы залиты и выровнены, стены идеально ровные, полностью заменена вся электрическая проводка.· Отделка: Ванная, санузел отделаны современным кафелем.· Комфорт и технологии: В ванной установлен «тёплый пол», в гостиной мощная сплит-система. Высокие потолки 2,9 метра.· Функциональность: Удобная кухня 14 м² с встроенной мебелью "Мария". Есть гардеробная комната со стиральной машинойИнфраструктура и двор:· Во дворе — зона для барбекю, современная детская и спортивная площадки, хоккейная коробка.· В шаговой доступности всё необходимое: аптека, почта, продуктовые магазины.· Круглосуточное видеонаблюдение (Уфанет) в подъездах и лифтах для вашей безопасности.Транспортная развязка:· Остановка общественного транспорта в 3х минутах ходьбы. Автобусы № 7, 20, 79Н, 53Н позволят добраться в любую точку города без проблем.· Рядом расположены улицы: Алтайская, Карагандинская, Пр. Гагарина, Лесозащитная.✅Если у Вас не продан объект недвижимости, но Вы хотите приобрести наш, мы готовы помочь Вам реализовать эту мечту! Наша компания всегда готова предложить Вам лучшие варианты решения, которые соответствуют Вашим потребностям!Звоните и записывайтесь на просмотр!!!
ID объекта в нашей базе: 1726
Тип недвижимости
Адрес
Этажность
Этаж
Площадь
3-комн. квартира
Россия, Оренбургская обл, Оренбург, ул. Мира,3/1
16
9
85.4
ID объявления
Обновлено
Создано
Действительно до
786519
2025-12-07 06:06:25
2025-12-07 06:06:25
2026-03-07 06:06:25

6 150 000 ₽
2-комн. квартира
Россия, Оренбургская обл, Оренбург, пр-кт. Победы,149/2

4 299 000 ₽
Дом
Россия, Оренбургская обл, Оренбург, г.Оренбург, СНТ "Бургаз", дом 225

4 500 000 ₽
1-комн. квартира
Россия, Оренбургская обл, Оренбург, ул. Уральская,2/8

3 990 000 ₽
1-комн. квартира
Россия, Оренбургская обл, Оренбург, ул. Народная,36

6 500 000 ₽
Дом
Россия, Оренбургская обл, Оренбург, г. Оренбург, пос. Весенний, СНТСН Карачи, ул. Буравиков, 209

4 299 000 ₽
1-комн. квартира
Россия, Оренбургская обл, Оренбург, ул. Брестская,9

6 500 000 ₽
Дом
Россия, Оренбургская обл, Оренбург, Array

3 249 000 ₽
1-комн. квартира
Россия, Оренбургская обл, Оренбург, ул. Липовая,15/1
6 700 000 ₽
Дом
Россия, Оренбургская обл, Оренбург, СНТ Авиато- 3, ул. Десантная 43

3 550 000 ₽
2-комн. квартира
Россия, Оренбургская обл, Оренбург, ул. Одесская,111

2 850 000 ₽
Дом
Россия, Оренбургская обл, Оренбург, ул. Макаровой-Мутновой,195

4 299 000 ₽
Дом
Россия, Оренбургская обл, Оренбург, Оренбургский р-н, г.Оренбург, ул.Измайловская

2 300 000 ₽
Гараж
Россия, Оренбургская обл, Оренбург, ул. Просторная,8

8 999 000 ₽
Дом
Россия, Оренбургская обл, Оренбург, Рублева

4 610 000 ₽
1-комн. квартира
Россия, Оренбургская обл, Оренбург, пер.Слесарный 7

3 800 000 ₽
Дом
Россия, Оренбургская обл, Оренбург, г.Оренбург, СНТ "Бургаз", дом 225

4 700 000 ₽
Россия, Оренбургская обл, Оренбург, ул. Лукиана Попова,87

7 100 000 ₽
Дом
Россия, Оренбургская обл, Оренбург, Оренбургский район, пос. Приютово, ул Детская

6 000 000 ₽
3-комн. квартира
Россия, Оренбургская обл, Оренбург, ул. Юркина,2

6 200 000 ₽
Дом
Россия, Оренбургская обл, Оренбург, ул. Луговая
8 500 000 ₽
Земельный участок
Россия, Оренбургская обл, Оренбург, ул. Весенняя,3

5 899 000 ₽
3-комн. квартира
Россия, Оренбургская обл, Оренбург, пр-кт. Парковый,50

4 299 000 ₽
Дом
Россия, Оренбургская обл, Оренбург, Оренбургский р-н, г.Оренбург, ул.Измайловская

4 650 000 ₽
Россия, Оренбургская обл, Оренбург, ул. Лукиана Попова,87